고덕비즈밸리 강동u1 지식산업센터 소식입니다.
고덕비즈밸리 8월 준공을 앞두고 전매 물건이 활발히 거래가 되고 있어서 사업개요와 전매물건을 소개해 드리고자 합니다
1. 고덕비즈밸리 강동U1센터 지식산업센터 사업개요입니다
| 위치 : 서울 강동구 고덕동 343-2 일원 (고덕강일 공공 주택 지구 자족 6BL) | ||
| 지역/지구 | 준 주거지역, 지구단위계획 | |
| 대지면적 | 3,083.99평 | |
| 연면적 | 21,574평 | |
| 규모 | 지하4층~지상20층 [지상14층 - 2개동] | |
| 건폐율 | 51.10%(법정 60%) | |
| 용적률 | 399.98%(법정400%) | |
| 전용률 | 50.02% | |
| 사용용도 | 지식산업센터(공장), 업무시설, 근린생활시설 | |
| 주차 대수 | 503대 | |
| 준공일 | 2023년 8월 예정 | |
연면적 2만여평 이상의 규모로 지하4층~지상20층까지 두개동으로 건축하였습니다

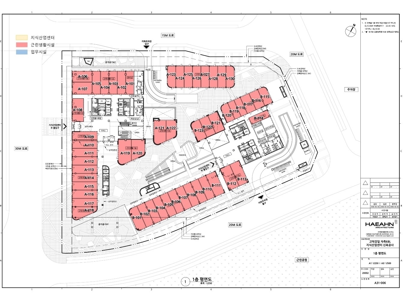
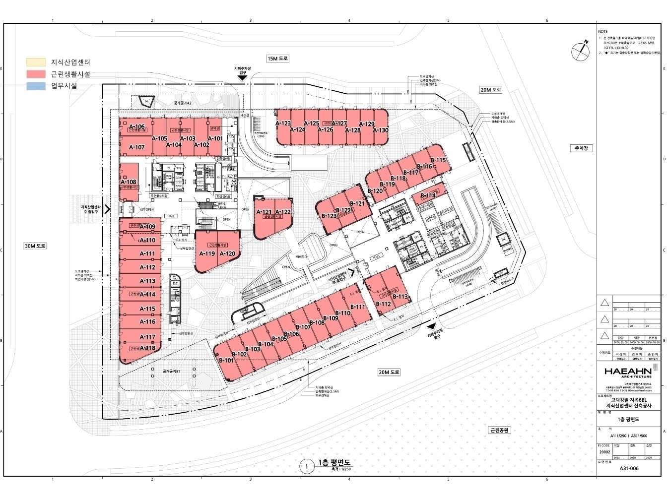
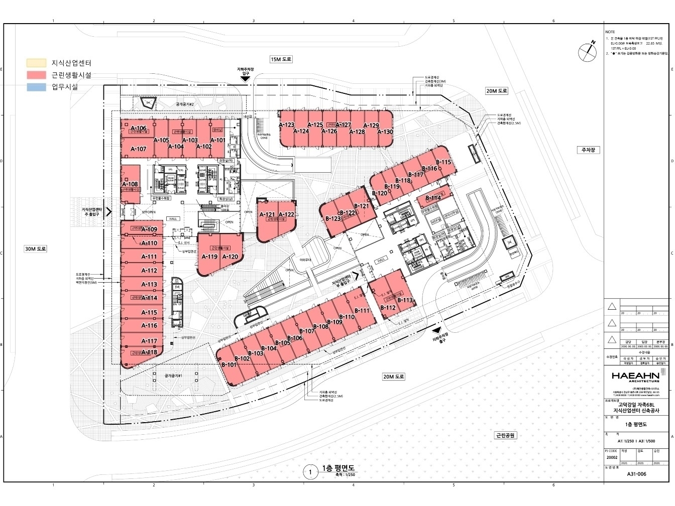
2. 강동U1센터 지식산업센터 현장 안내 입니다



입주자들을 위한 편의시설과 공유시설을 마련하였습니다
공유오피스와 휘트니스, 인큐베이팅센터, 웰컴센터, 공공형 키즈카페, 스마트팜까지 구성되었습니다
3. 강동U1센터 지식산업센터 위치와 개발 안내입니다
강동구 고덕동 일대의 대규모 택지 개발구역으로 아파트, 산업단지들이 들어서 있으며, 강동구의 산업단지 내 들어오는 유일한 지식산업센터라고 합니다

9호선 중앙보훈역 길동생태공원역 한영고등학교 고덕역 고덕강일지구까지 연장
현재 공사 진행중이며, 9호선 샘터공원 28년 개통예정입니다
개통되면 고덕비즈밸리 가장 앞자리에 강동U1센터 지식산업센터가 위치하고 있습니다.
도보로 2분거리 초역세권 입니다
이케아, 한국고용정보, 신라교역, 한전케이디엔, 도드람 등 17개의 기업들이 입주 예정입니다.



4. 전매호실과 조건 안내 입니다



| 지하2층 | 전용 22.6평 / 분양 47.05평 | |
| 공급가 304,410,000원 | 부가세 17,375,000원 (100%환급) | 총 분양금액 321,785,000원 |
| 지하2층 | 전용 21.59평 / 분양 44.94평 | |
| 공급가 261,550,000원 | 부가세 14,929,000원 (100%환급) | 총 분양금액 276,479,000원 |
[문의주시면 호실안내와 프리미엄 조건을 안내해 드리겠습니다]

| 1층 상가 | 전용 15.82평 / 분양 32.93평 | |
| 공급가 823,250,000원 | 부가세 46,991,000원 (100%환급) | 총 분양금액 870,241,000원 |
| 1층 상가 | 전용 13.72평 / 분양 28.56평 | |
| 공급가 599,760,000원 | 부가세 34,234,000원 (100%환급) | 총 분양금액 633,994,000원 |
[문의주시면 호실안내와 프리미엄 조건을 안내해 드리겠습니다]

| 2층 업무지원시설 | 전용 11.43평 / 분양 23.8평 | |
| 공급가 323,680,000원 | 부가세 18,475,000원 (100%환급) | 총 분양금액 342,155,000원 |
[문의주시면 호실안내와 프리미엄 조건을 안내해 드리겠습니다]

| 지상 A15층 | 전용 12.96평 / 분양 26.97평 | |
| 공급가 382,160,000원 | 부가세 21,813,000원 (100%환급) | 총 분양금액 403,973,000원 |
[문의주시면 호실안내와 프리미엄 조건을 안내해 드리겠습니다]

| 지상 A16층 | 전용 27.52평 / 분양 57.31평 | |
| 공급가 817,810,000원 | 부가세 46,680,000원 (100%환급) | 총 분양금액 864,490,000원 |
[문의주시면 호실안내와 프리미엄 조건을 안내해 드리겠습니다]
이밖에도 강동 U1센터 지하부터 근생, 지식산업센터 전매 물건 보유하고 있으니,
☎1833-8166번으로 문의주세요
전실장의 부동산노트
지식산업센터(아파트형공장) 분양&전매&임대 궁금하신 부분은 언제든지 문의주세요 1833-8166
pf.kakao.com
'부동산 정보' 카테고리의 다른 글
| 2023년 sh공공.주거환경임대주택 입주자 예비입주자 모집공고 신청방법 (0) | 2023.08.22 |
|---|---|
| 구로한영IT타워 (아이티타워) 사업개요 분양가격 안내 (0) | 2023.07.26 |
| 가산 YPP아르센타워 지식산업센터 기숙사 전매 (0) | 2023.04.17 |
| 가산동 ys타워 지식산업센터 전매 준공안내 (0) | 2023.04.04 |
| 광명 현대테라타워 지식산업센터 상가 전매 급매호실 계약금포기 물건 안내 (0) | 2023.03.30 |
