안녕하세요
광명테라타워 지식산업센터를 소개합니다
이번 신규 분양되는 광명테라타워 지식산업센터는 경기도 광명시 하안동 303번지 외 3필지에 위치하였습니다





3만여평의 중형급 지식산업센터이며, 지하5층~지상16층의 규모로 지하1층~2층은 지원시설, 3~4층은 드라이브인 시스템을 적용한 최첨단 지식산업센터로 광명시 랜드마크가 될 것으로 예상됩니다. 지식산업센터, 운동시설, 상업시설로 구성되었습니다. 광명테라타워의 건설사는 현대엔지니어링입니다.
주차는 법정대비 195%에 달하는 760대를 수용할수 있도록 여유로운 주차시설을 구성하였습니다. 엘리베이터는 화물용 2대 포함해서 10대입니다 출퇴근 시간이나, 점심시간에 엘리베이터로 인해 복잡할 걱정은 없을듯 싶습니다.


제2경인선 광역철도 건설사업은 2024년 착공 2030년 개통으로 예정되어 있는 사업입니다.


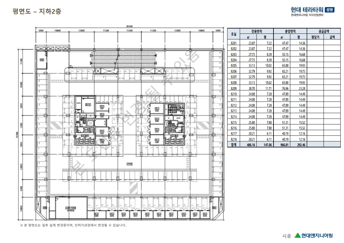
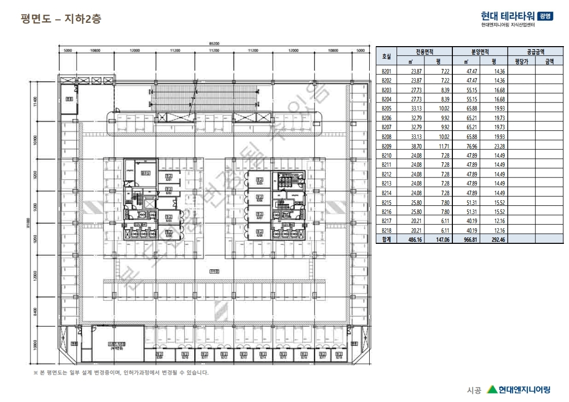
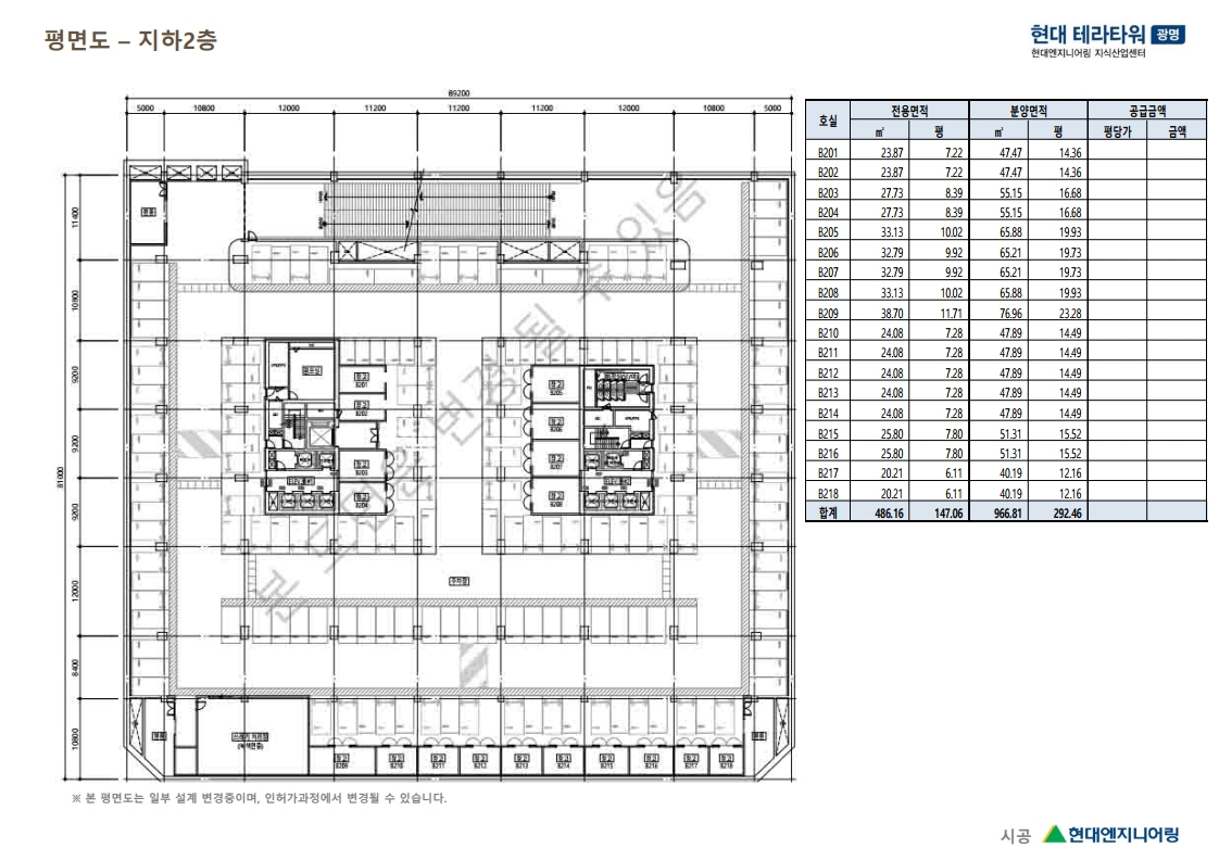
지하는 주차장과 드라이브인 창고와 공장으로 되어 있습니다.
지하에는 드라이브인 시스템으로 호실 앞 주차하실수 있도록 설계하였습니다. 주로 공장이나, 창고로 많이 사용하시는데요, 화물적재를 쉽게 하실수 있는 장점이 있습니다. 저렴한 가격에 공장, 창고를 분양 받아 보세요

지하1층에는 근생과 운동시설이 있습니다. 운동시설에는 스크린골프장이나, 당구장, 볼링장 등 분양이 가능하며, 그밖에 근생에는 노래연습장이나 일반음식점, 사무용품 전문점, 세탁소 등 분양받아 입점하셔도 좋을거 같습니다.
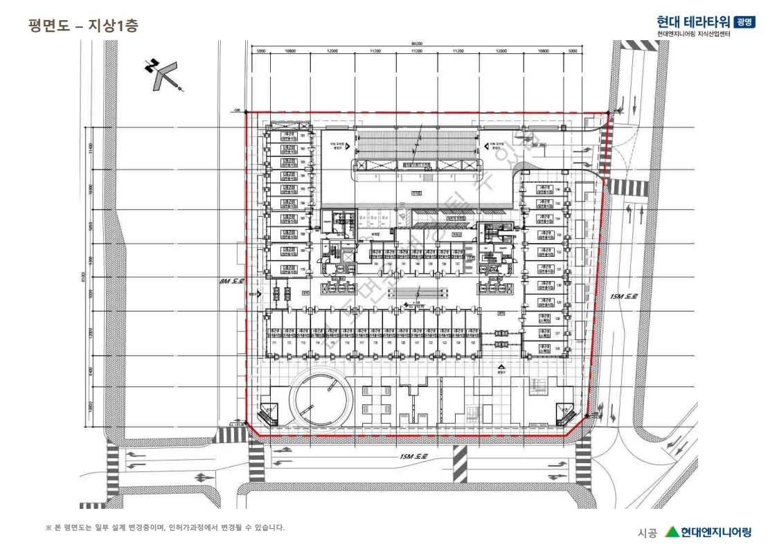
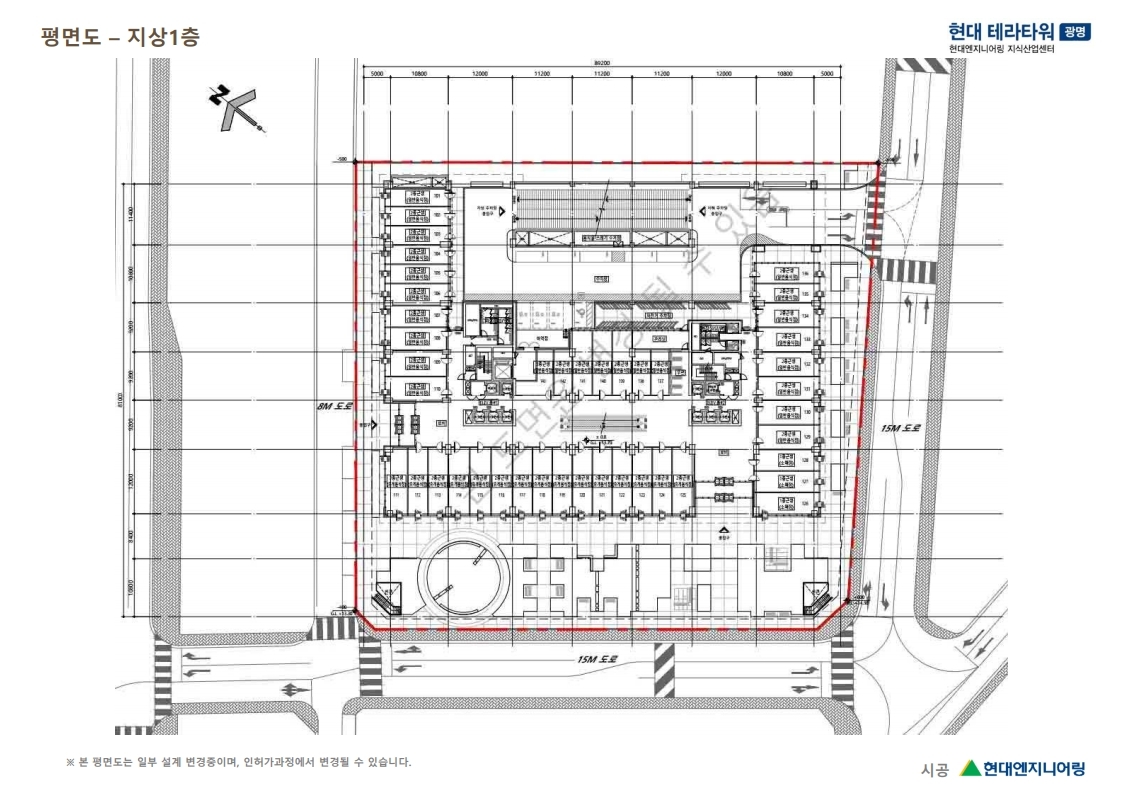
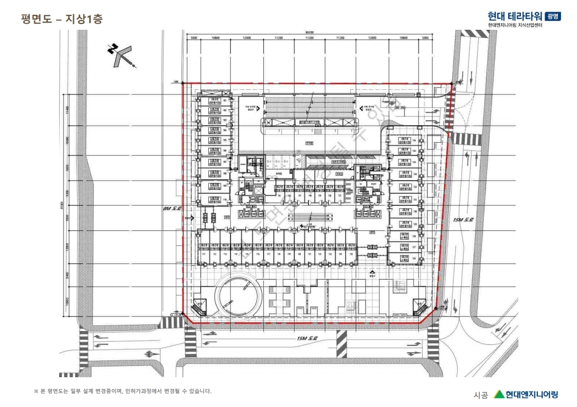
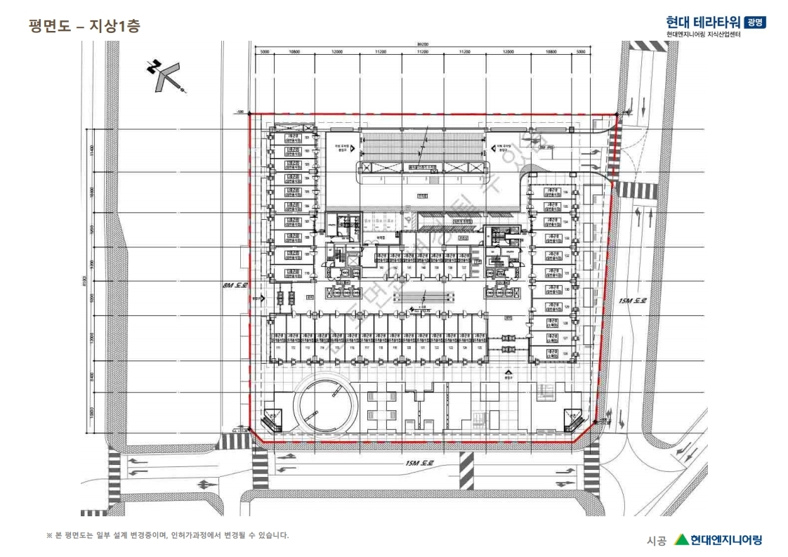
지상1층과 2층에는 지원시설과 상가로 구성되어 있어, 편의점, 부동산, 카페, 베이커리, 은행, 일반음식점, 휴대폰매장 등등 입주자들의 각종편의시설로 구성되면 좋을 거 같습니다.

3층에서 16층까지는 공장입니다. 4.2m의 높은층고로 개방감이 있겠네요 3층 기준으로 전용15평, 19평, 23평, 35평, 44평으로 약간의 평수 차이가 있긴 하지만, 다양한 면적으로 구성되어 효율성 높은 설계로 업종별, 규모별 적절하게 원하시는 평수로 분양받아 사용하실 수가 있습니다.
지상2층부터 지상4층까지 드라이브인 시스템으로 차가 올라가는 구조입니다. 물류 적재시간과 비용이 절감되어 효율적인 운송을 할수 있습니다

지상 5층은 옥상정원이 있습니다. 전용15평~76평까지 다양하며, 한개층을 분양받으신다면, 전용평수 880평 정도가 되겠습니다.

광명테라타워 지식산업센터의 장점입니다.
- 초역세권으로 하안동 우체국 사거리역 신설예정 도보1분 거리입니다.
- 최상급 편의시설로 휴게공간 및 운동시설, 세미나실 등 하안동 지식산업센터의 특별한 편의시설을 제공합니다.
- 지상4층까지 드라이브인 시스템을 적용하여 쾌적한 물류환경을 조성합니다.
- 사통팔달의 쾌속 교통망, 서부간선도로, 강남순환고속도로 등 강남 및 도심 전 지역 접근성이 탁월한 교통 환경을 자랑합니다.
- 스마트한 설계로 다양한 면적대, 효율성 높은 설계로 업종별, 규모별 적절하게 사용 가능합니다.
- 1군브랜드 현대엔지니어링에서 시공합니다.
- 전호실 발코니제공
하안동우체국사거리에 위치한 광명테라타워 지식산업센터는 현재 청약중이며, 7월초 본계약을 시작합니다.
계약금 10%로 계약하며, 중도금은 무이자로 진행합니다.
잔금시 잔금대출이 80%~ 가능하기 때문에 실투자금이 15~20%정도 예상하시면 될듯합니다.
지식산업센터는 초기 투자비용의 부담을 덜어드릴수 있다는 장점이 있습니다
그리고 지식산업센터의 장점인 세제혜택이 있습니다.
분양받아 입주하시게 되면 취득세 50%감면, 재산세 37.5%감면혜택이 있습니다.
담보대출(잔금대출) 80%이상 진행이 가능합니다. 단 신용에 따라 변경될수있습니다.
또한 서울시 중소벤처기업진흥공단이나, 서울신용보증재단에서도 저금리로 진행이 가능합니다.

사옥이전이나, 투자계획이 있으시다면 ☎ 1833-8166 번으로 문의주시기 바랍니다.
