광명G타워 지식산업센터를 소개합니다.
광명G타워는 소하지구의 첫 복합문화시설로써, 연면적 47000평인 메머드급 지식산업센터로 현재 분양 중에 있으며, 의료시설인 건강검진센터와 메디컬 존, 문화시설에서는 메가박스(극장), 키즈카페, 볼링장이 입점하기에 많은 것을 누릴 수 있는 지식산업센터라고 소개해드릴 수 있겠습니다.

광명G타워의 조감도 입니다. 건물자체가 다른지식산업센터와 다르게 너무나 멋있게 나온듯 합니다.


광명G타워의 위치는 광명시 소하동 1344번지에 위치하고 있습니다.


※ 광명G타워 사업개요
| 대지위치 | 광명시 소하동 1344 |
| 용도 | 지식산업센터, 지원시설(근린생활시설, 건강검진센터, 의원, 기숙사, 문화 및 잡화시설, 운동시설, 어린이집) |
| 대지면적 | 17,254.80㎡ (5,219.58평) |
| 건축면적 | 12,049.60㎡ (3,645.00평) |
| 연면적 | 156,395.20㎡ (47,309.55평) |
| 건폐율 | 69.83% (법정:70%) |
| 용적율 | 499.89% (허용:500%) |
| 층수 | 지하4층~지상15층 |
| 구조 | 철근 콘크리트조 |
광명G타워 지식산업센터의 시행은 하나 자산신탁이며, 시공은 롯데건설과 두산건설이며, 축적된 노하우를 바탕으로 지식산업센터 입주사들의 사업과 업무에 필요한 최적의 기능을 트렌드에 맞게 시공할 것입니다.
광명G타워 지식산업센터는 광명 소하 최초의 복합문화공간을 제공합니다.
중앙대학교병원 건강검진센터가 3층 개원 확정되었으며, 6개의 상영관 멀티플렉스 영화관이 지하 2층~지하 1층 확정되었습니다. 24레인 규모의 볼링장이 지하 2층, 그리고 어린이집, 대형 키즈카페, 어린이 도서관 등으로 의료시설과 문화시설을 계획하였고, 현재 진행이 되고 있습니다.




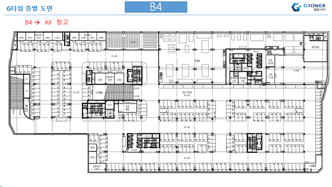
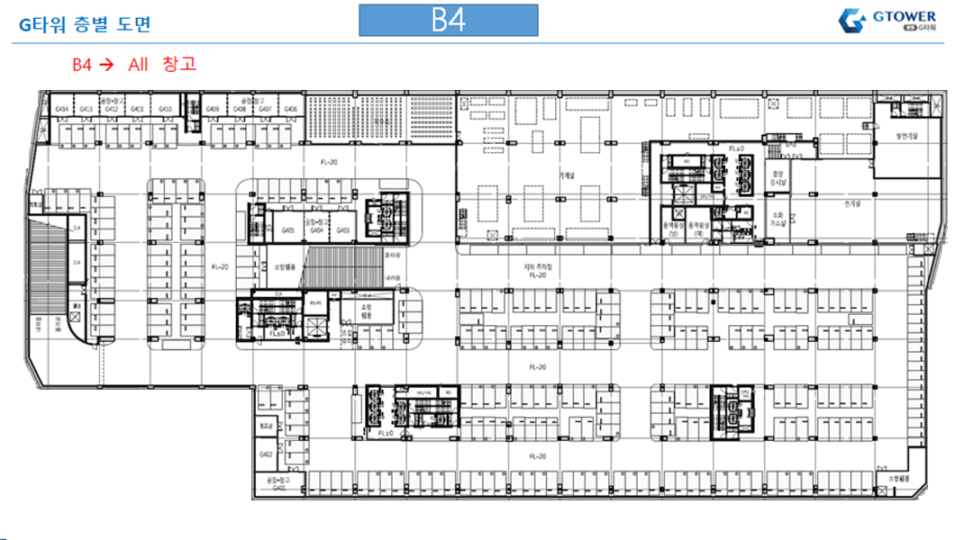
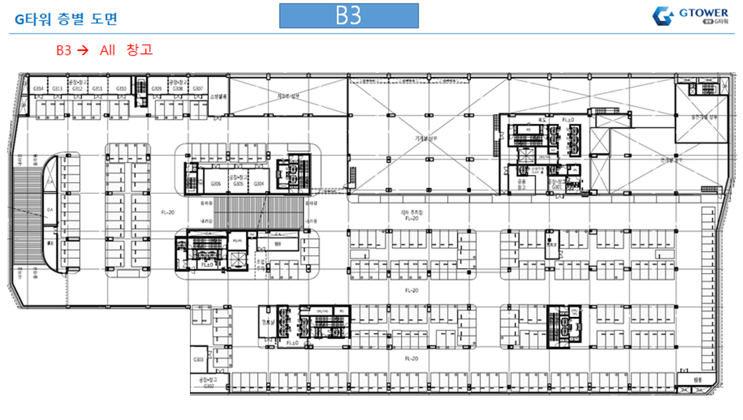
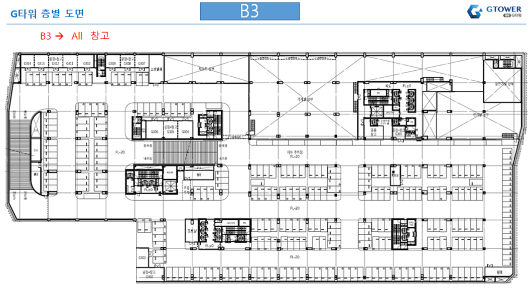
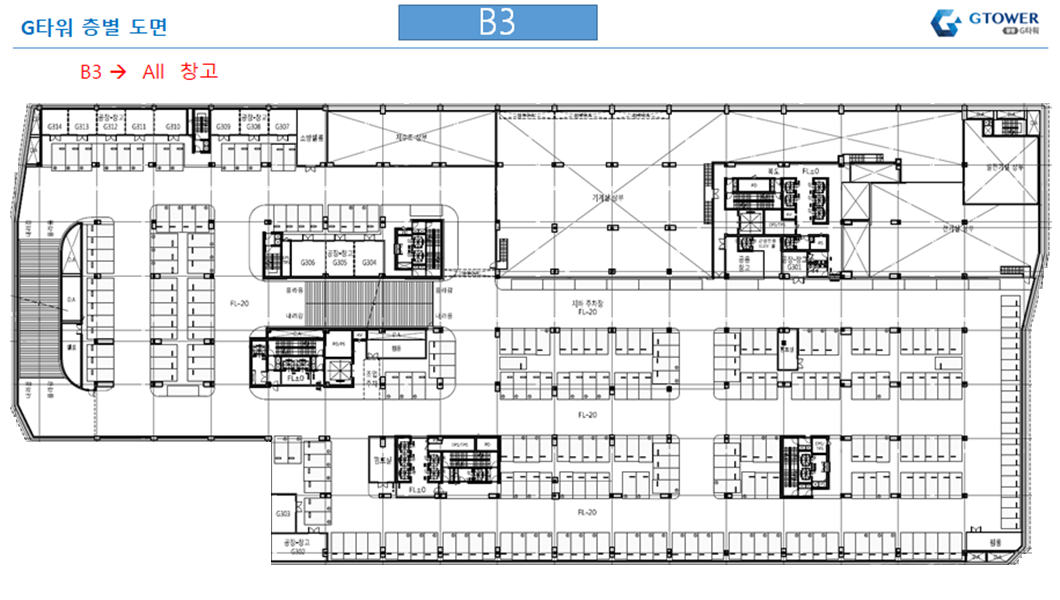
지하 2층부터 지상 3층까지의 도면입니다.
지하 1층과 지하 2층에는 위에서도 말씀드렸듯이 6개의 상영관이 있는 메가박스가 입점됩니다.
그리고 스크린골프장과 볼링장이 계획되어 있고, 넉넉한 주차장과 창고나 공장(오피스)로 분양받아 사용하실 수 있도록 구성되어 있습니다. 지하 1,2층에 있는 공장 호실은 분양가격이 저렴하여, 창고가 필요하신 기업에서도 많은 문의가 있을 것으로 예상됩니다. (스크린골프장, 당구장, 카센터 관심있으시면 문의주세요)








지상 1층에는 많은 근린생활시설이 있습니다. 독점 자리인 두 개의 편의점과 세 개의 약국, 두 개의 부동산이 있으며, 그 외 베이커리나 카페, 은행, 식당들이 입점할 수 있겠습니다. 3층에는 중앙대 건강검진센터와 2층에 반개층 이상이 메디컬 존으로 구성되어 있어서 1층에 약국 자리 또한 큰 메리트가 있다고 보입니다. 그리고 다른 지식산업센터와는 다르게 광명G타워는 평일과 주말 상권도 가능하다고 봅니다. 평일 상권은 지식산업센터와 건강검진센터 수요로 북적이며, 주말에는 대형 앵커시설을 이용하는 패밀리 수요로 발 디딜 틈이 없는 1년 365일 주 7일 모두 활발하고 탄탄한 수요를 기대할 수 있을 거 같습니다. 편의점은 이미 계약이 완료된 상태이며, 약국호실, 부동산호실은 몇 호실 안 남았으니, 관심이 있으시다면 서둘러주세요^^
도면 보시면 지하에서부터 지상 5층까지 주차도 가능하시고, 드라이브인 시스템으로 차량 이동이 가능하며 자세히 보시면 오른쪽으로 에스컬레이터가 있어서 이동하기에도 편리하게 구성되어 있습니다.




지상 2층은 10평대, 20평대, 30평대, 40평대까지 다양한 평형대로 구성되어 있는 메디컬 존이 있습니다.
각종 병원들이 입점하게 됩니다. (병원: 소아과, 치과, 내과, 정형외과 등 문의받습니다.)
그리고 지상 3층은 중앙대 건강검진센터가 입점합니다.
그리고 소하지구 주거 단지로 소하휴먼시아 1단지부터 7단지, 신촌휴먼시아 1,2단지, 휴먼 포레스트 1차 등등 많은 아파트 단지와 소하초, 중, 고부 터 기아차 소하공장, 에이스광명타워, SK 테크노파크 등 주변 배후수요가 약 10만여 명 예상하며 앞으로 구름산지구 개발도 예정되어 있으니 기대해볼 만할듯합니다. 그런 면에서 4만 7천 평의 큰 규모의 광명G타워 지식산업센터! 분양 소식은 소하지구에서 반가운 소식이 아닐까 생각됩니다. 지하에서부터 지상까지 문화시설과 의료시설로 새로운 상권이 형성되리라 봅니다.



광명G타워 지식산업센터에 대해서 설명해 드리겠습니다.
지상에는 2층부터 5층까지 드라이브인 시스템으로 구성되어 2.5톤까지는 호실 앞까지 차가 진입할 수 있습니다.
평형 대는 10평~40평형대까지 다양하게 있으며, 600만 원 후반부터 700만 원대의 분양가격이라, 소형 사무실을 필요로 하시는 분들도 부담 없이 분양받으실 수 있을 거 같습니다.




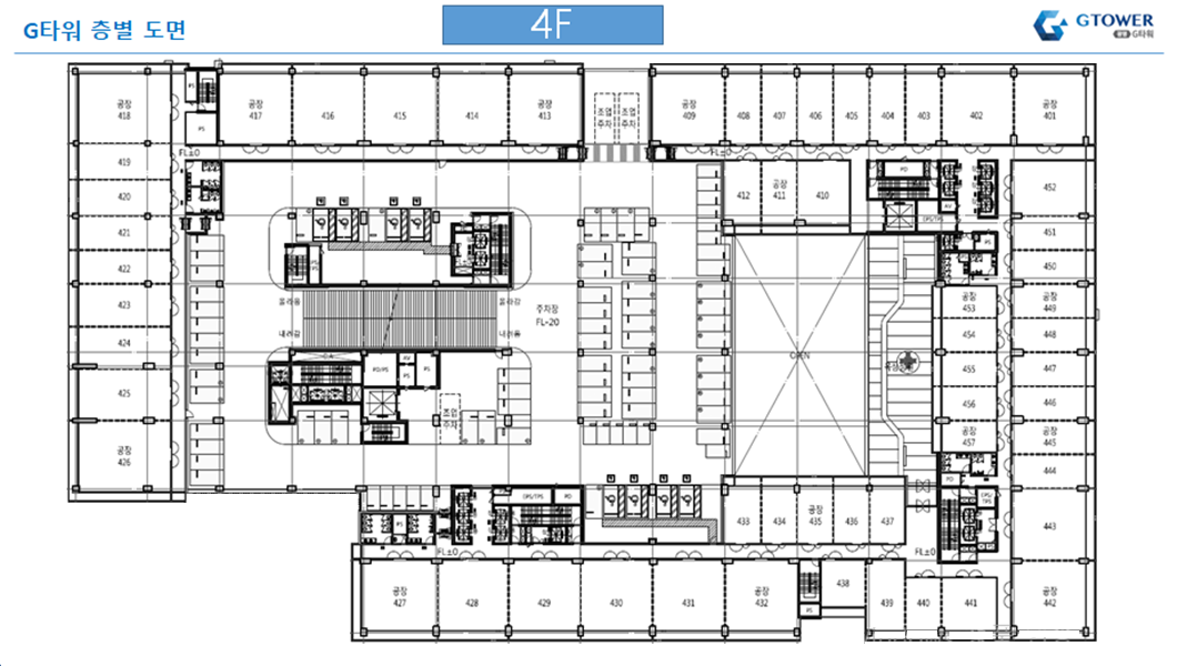
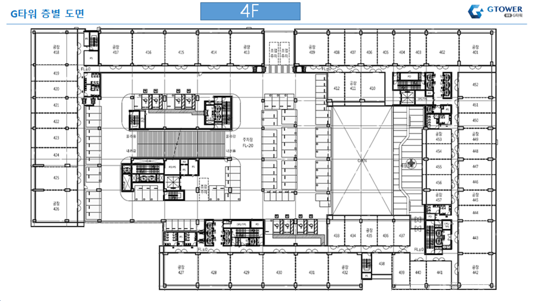
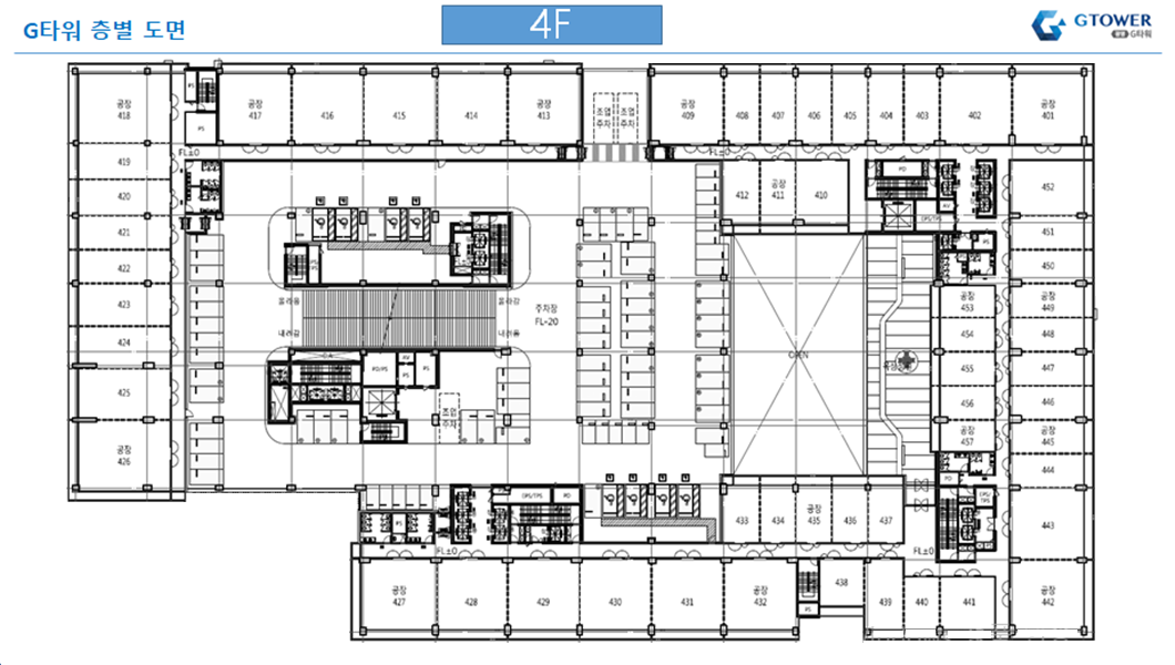
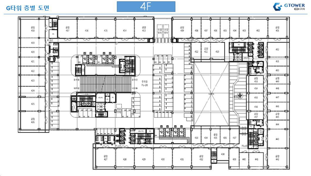
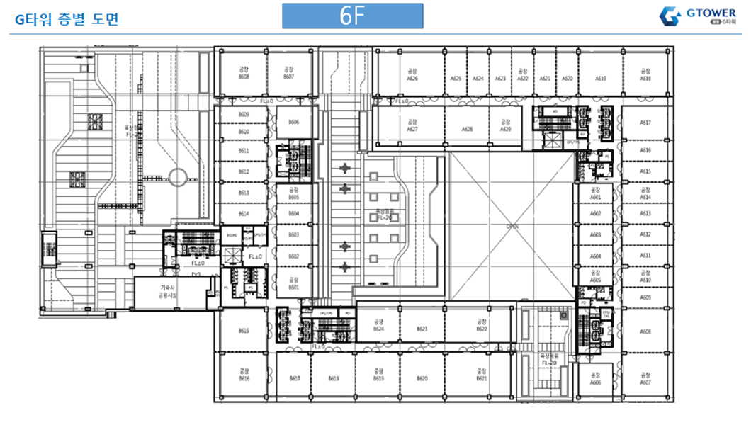
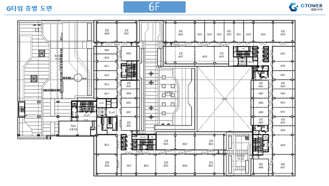
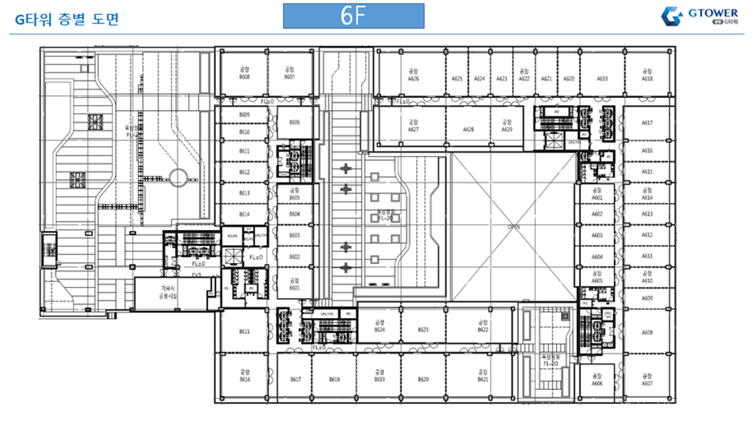
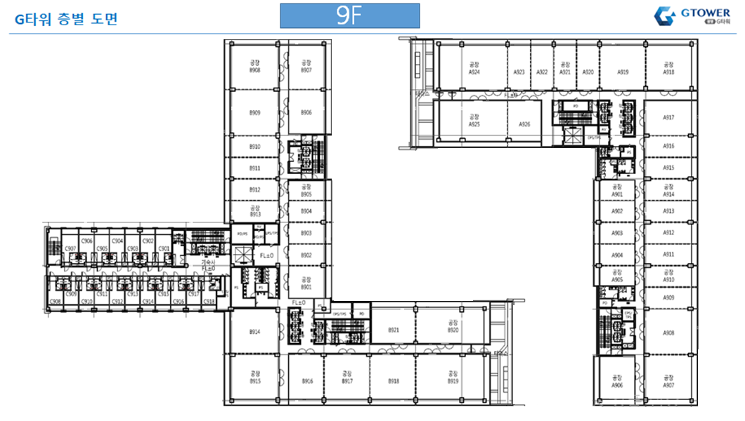
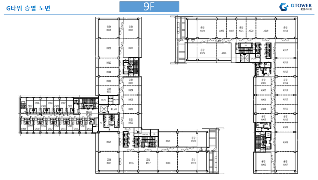
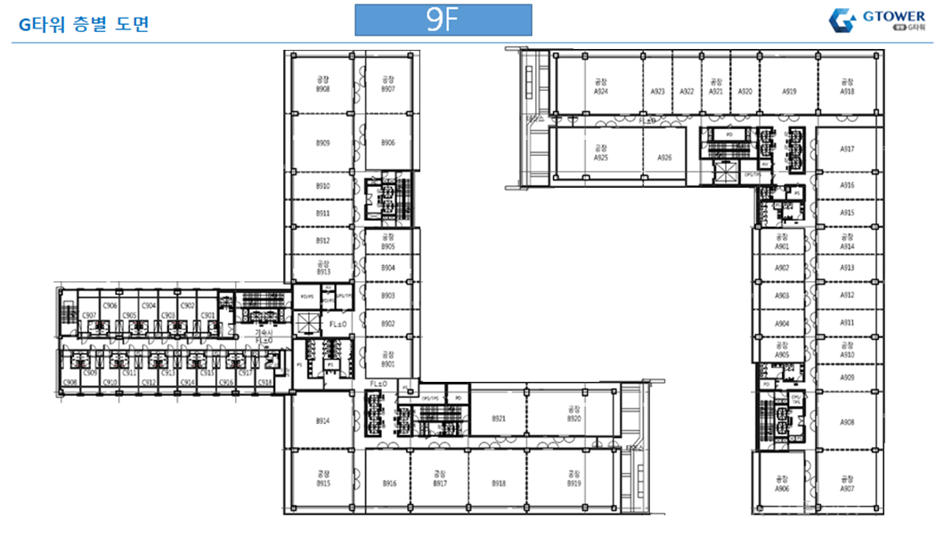
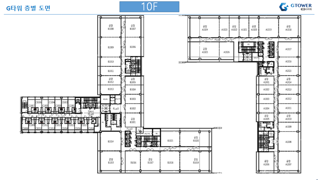
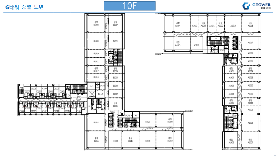
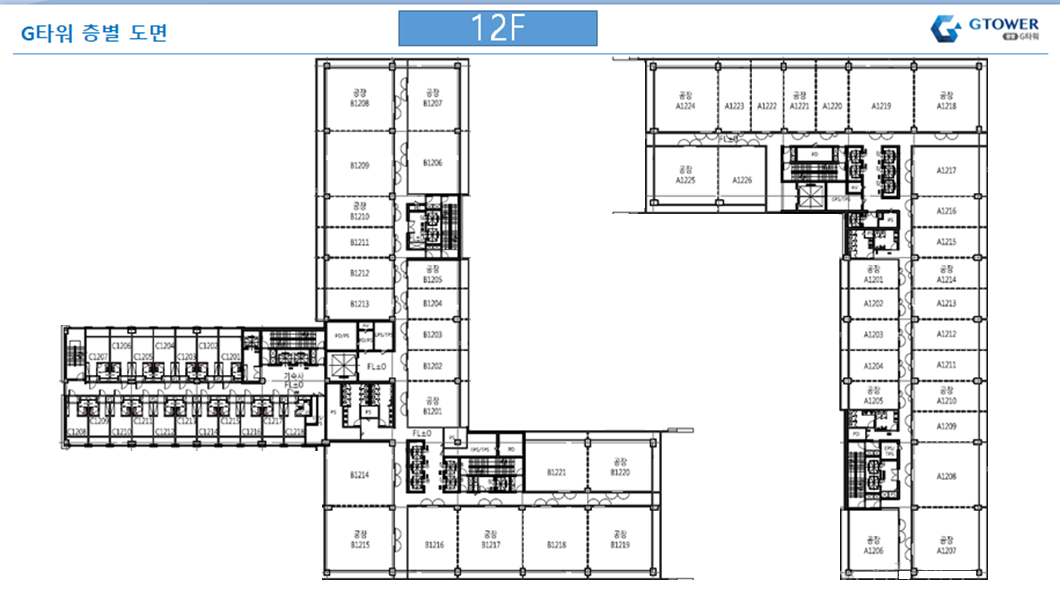
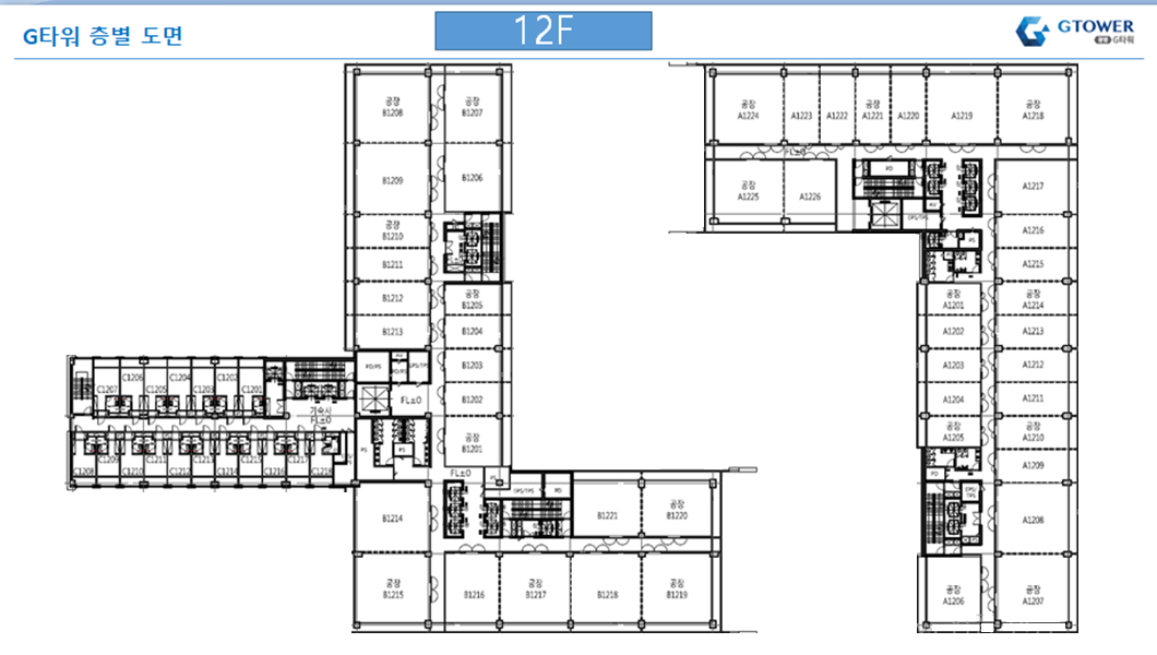
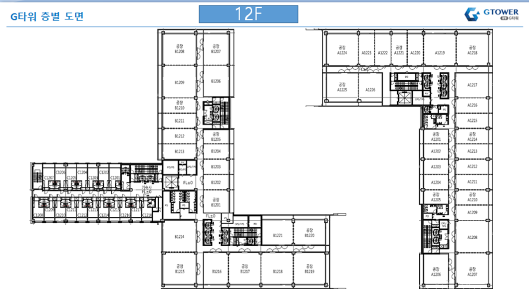
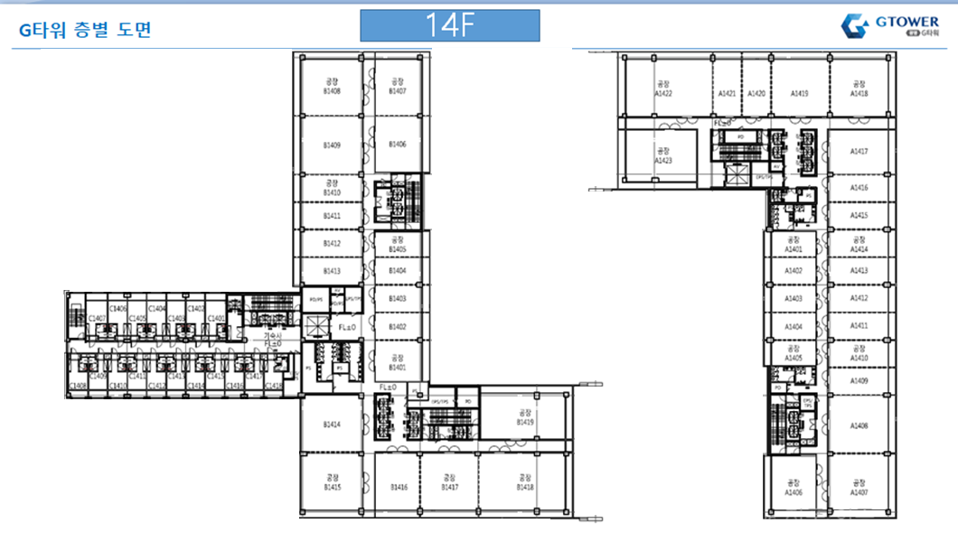
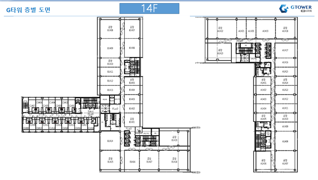
6층에서부터 공장 A동, B동으로 나누어져 있으며, 마찬가지로 다양한 평수의 공장(오피스)가 있습니다.
A동은 29개 호실, B동은 24개 호실로 구성되었고, 옥상정원이 있으며, 가운데 중정으로 되어 있네요
그리고 테라스 있는 호실도 많아서 그 공간을 휴게실 용도로 활용하시면 좋을 거 같습니다.


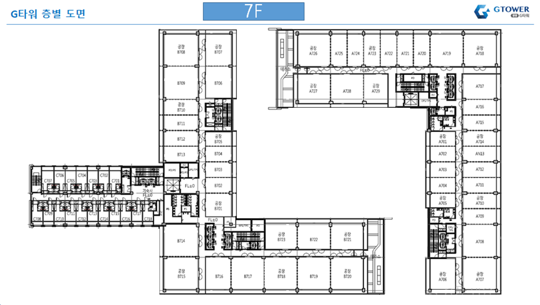
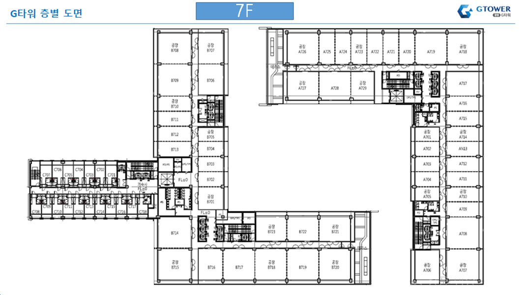
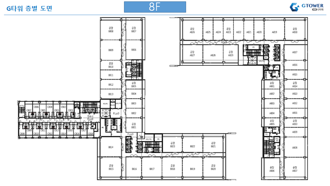
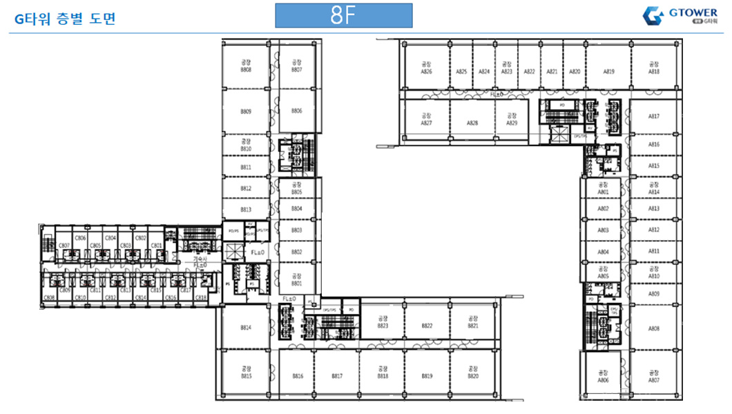
7층~15층까지는 A동 공장 29개 호실, B동 공장 23개 호실 기숙사 18개 호실로 구성되었으며, 기숙사는 전용 6.91평~8.57평 수입니다. 그리고 냉장고, 에어컨, 세탁기 등등 기본 옵션이 준비되어 있습니다. 일반 오피스텔과 다른 점은 약 1.3평 정도의 발코니가 있다는 점이고, 관리비가 훨씬 저렴하다는 장점이 있습니다.

























광명G타워 지식산업센터는 대출 80% 이상 가능하며, 중도금 무이자로 진행합니다.
계약금 10% -> 중도금 무이자 -> 잔금 (잔금대출) 순서대로 진행됩니다
계약 시 10% 납입하시면, 입주 시까지 들어가는 비용이 전혀 없습니다. 그리고 취득세 50% 감면, 재산세 37.5% 감면 혜택이 있습니다.
광명G타워 지식산업센터는 북측으로는 서울디지털국가산업단지, 남으로는 광명역세권의 입지로 부동산적인 가치가 뛰어납니다. 그리고 강남순환도시고속도로, 제2경인고속도로, 서해안고속도로, 광명 수원 고속도로, KTX 광명역 인접 및 신 안산선, 월곶-판교 선(예정)으로 쾌속 교통을 누리며, 바로 옆 안양천과 1Km 내 이마트와 소하 중심 상업 지구가 위치해 있으며, 차로 7분 거리로 이케아, 코스트코, 롯데 프리미엄 아웃렛이 있는 광명역세권 프리미엄까지 모두 누릴 수가 있습니다.


분양문의는 1833-8166번으로 문의주시면, 광명G타워 자료와 견적 안내해 드리겠습니다.
