제가 오늘 소개해 드릴 곳은 영등포 "당산동생각공장" 입니다.
영등포 당산동생각공장(가칭)의 대지위치는 서울 영등포구 당산동 1가 12, 12-1번지(서영 물류)입니다. 입지가 매우 좋아서 관심이 가는 현장입니다.


제가 지식산업센터 분양 일을 하면서 핫한 영등포, 문래동을 계속 기다려왔는데 이제야 시작하나 봅니다
영등포 지역은 아시다시피 많은 공장과 사무실이 밀집된 곳이지만 그에 비해 지식산업센터
(구 아파트형 공장)이 참 부족한 곳입니다. 그래서 많은 분들이 저처럼 기다리고 계시고, 시작하자마자
바로 완판이 되는 곳이기도 합니다.
영등포는 당산 SK, 선유도 아이에스 동서 1차, 2차 그 이후에 에이스 하이테크시티 2차, 3차, 투에니 퍼스트
등 준공 전 완판을 기록할 정도로 핫한 현장들이었지요
이번 영등포 서영 물류부지에 건축 예정인 당산동생각공장(가칭) 지금 사전 접수를 받고 있습니다.
입주의향서 양식을 작성하셔서 제출해 주시면 되는데요,
사업자 기본 정보, 필요하신 분양평수, 사업자등록증 1부 접수해 주시면 됩니다
입주의향서를 미리 접수해 주시면, 원하시는 층수와 평수, 위치, 등등 좋은 곳으로 선점하실 수 있는 기회가
있으시니, 고민하시고 계시다면, 입주의향서를 먼저 접수해 주세요~ 청약 아닙니다
입주의향서-> 청약-> 계약-> 중도금 무이자-> 잔금
이렇게 진행이 된다고 보시면 됩니다.
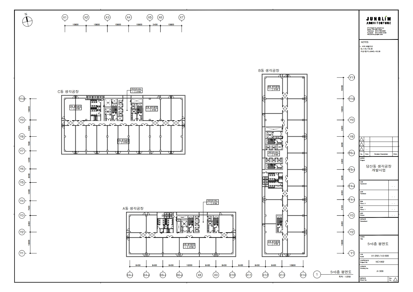
당산동생각공장(가칭)의 현장 위치입니다.
2호선 문래역 4번 출구 도보로 300미터 정도의 거리로, 도보 5분 이내이며
2,5호선 영등포구청 역 도보로 500미터 정도의 거리로 도보 7~8분 거리로 예상합니다
2,5호선의 더블역세권에 위치하며, 서울 서부권 교통 요지로 여의도, 목동, 마곡, 강남 이동이 용이하고 올림픽대로
경인고속도로, 서부간선도로, 강변북로 등 서울 시내 외에도 수도권 어디로든 빠르게 이동이 가능합니다.


그리고
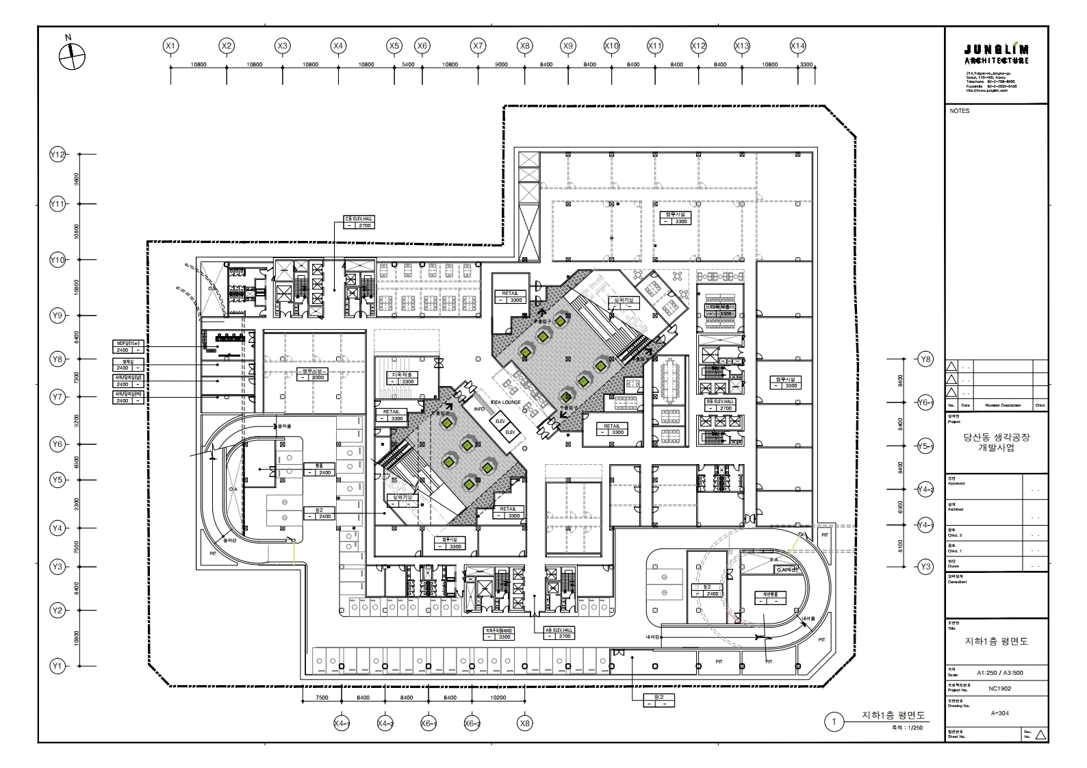
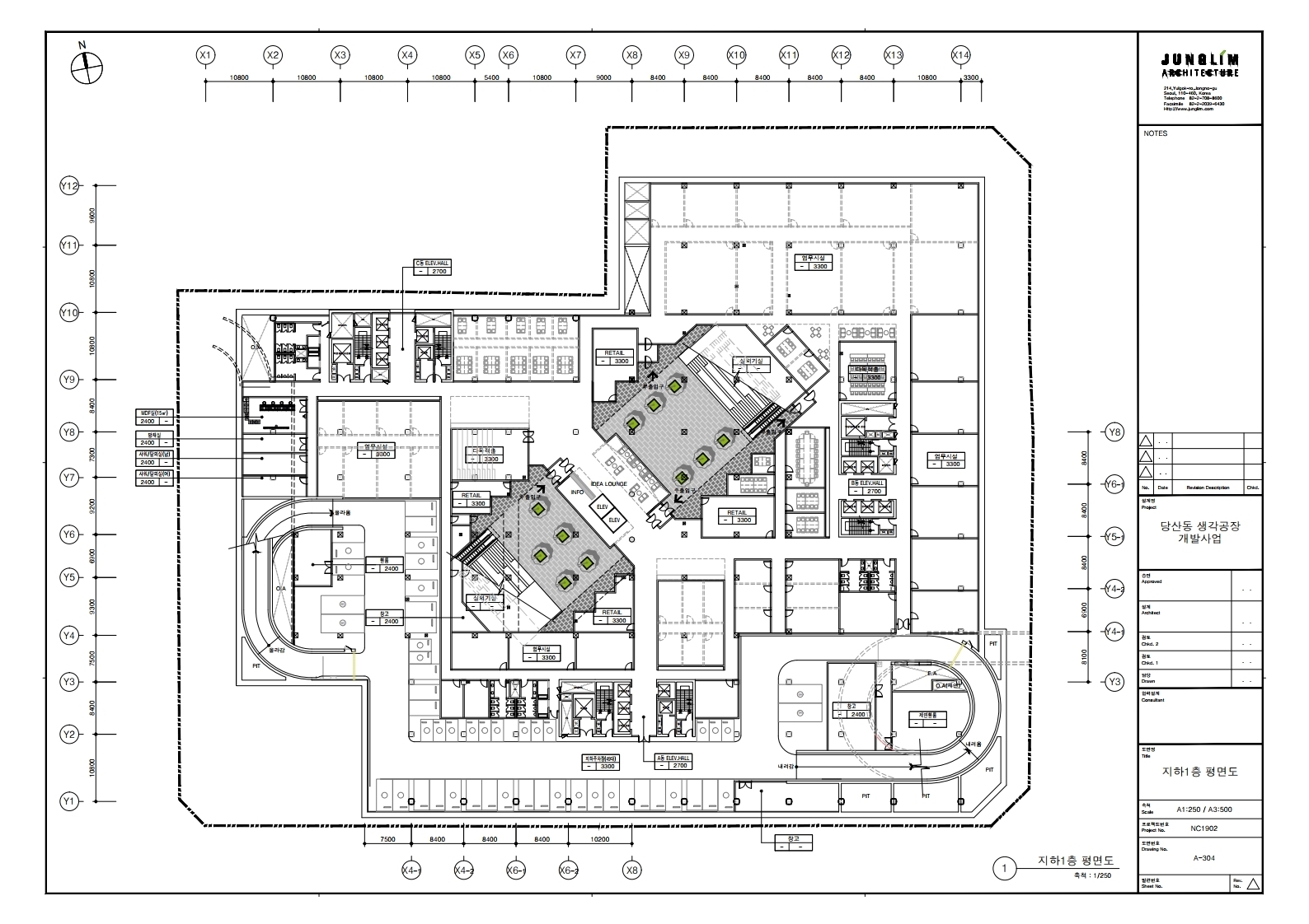
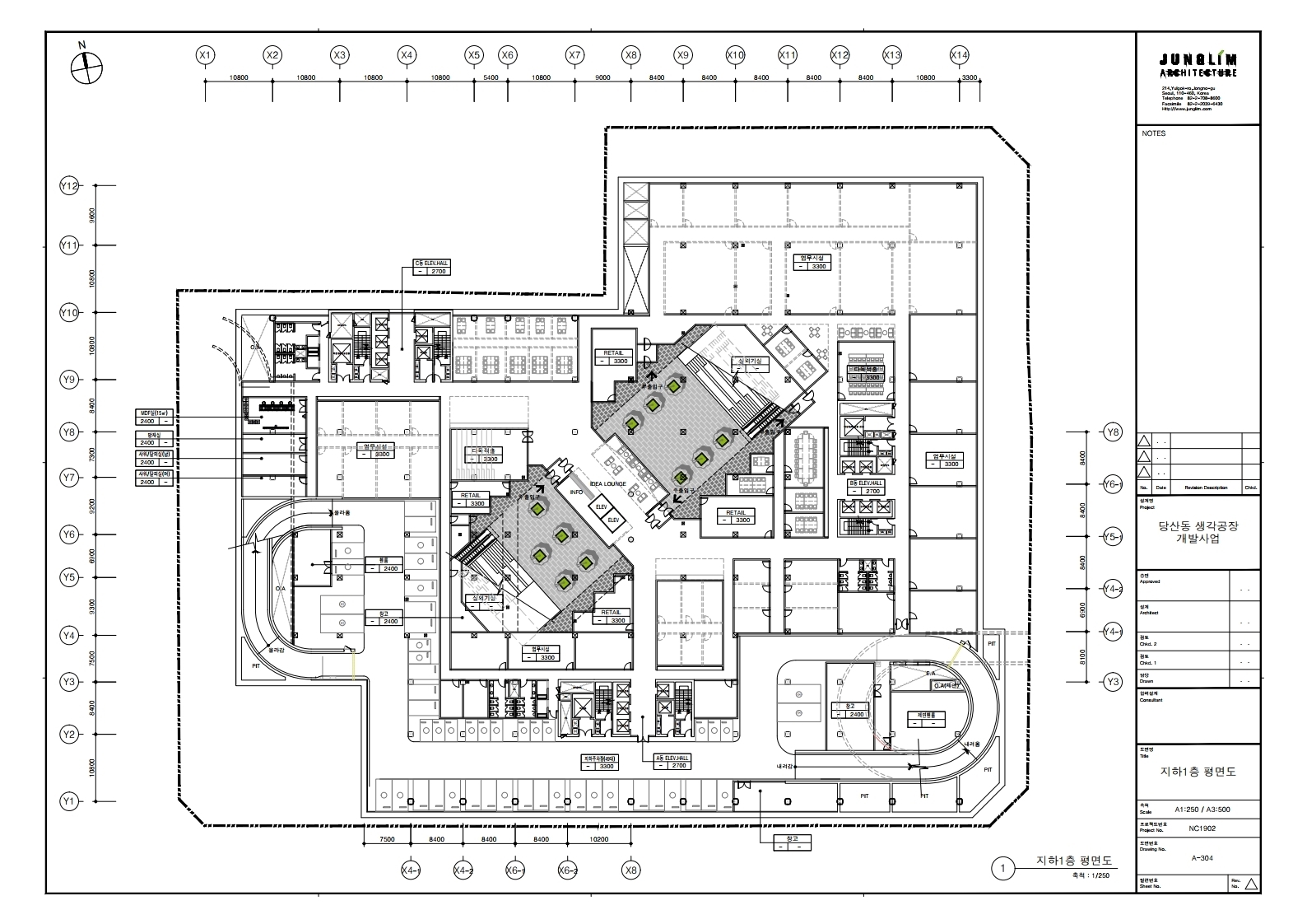
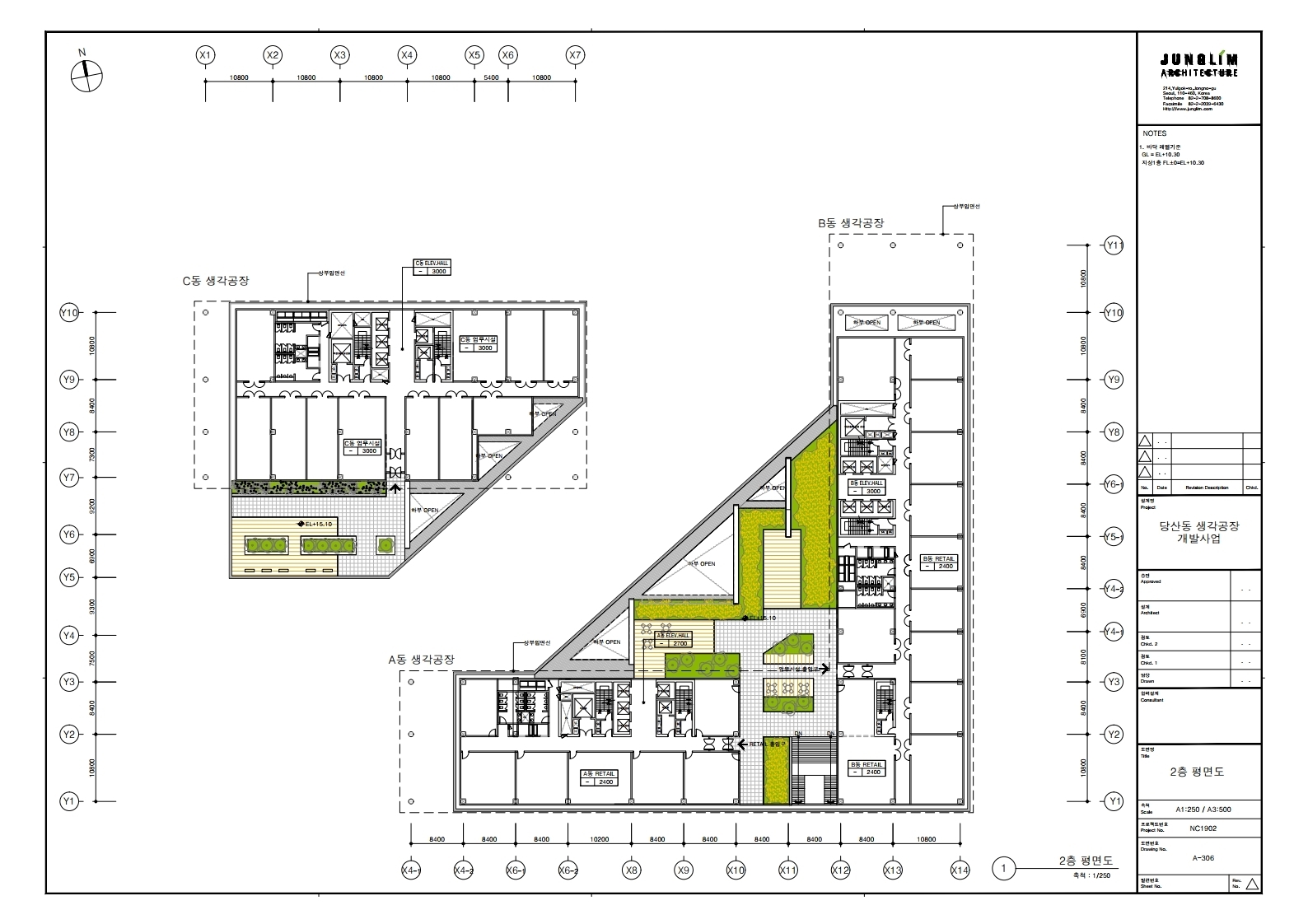
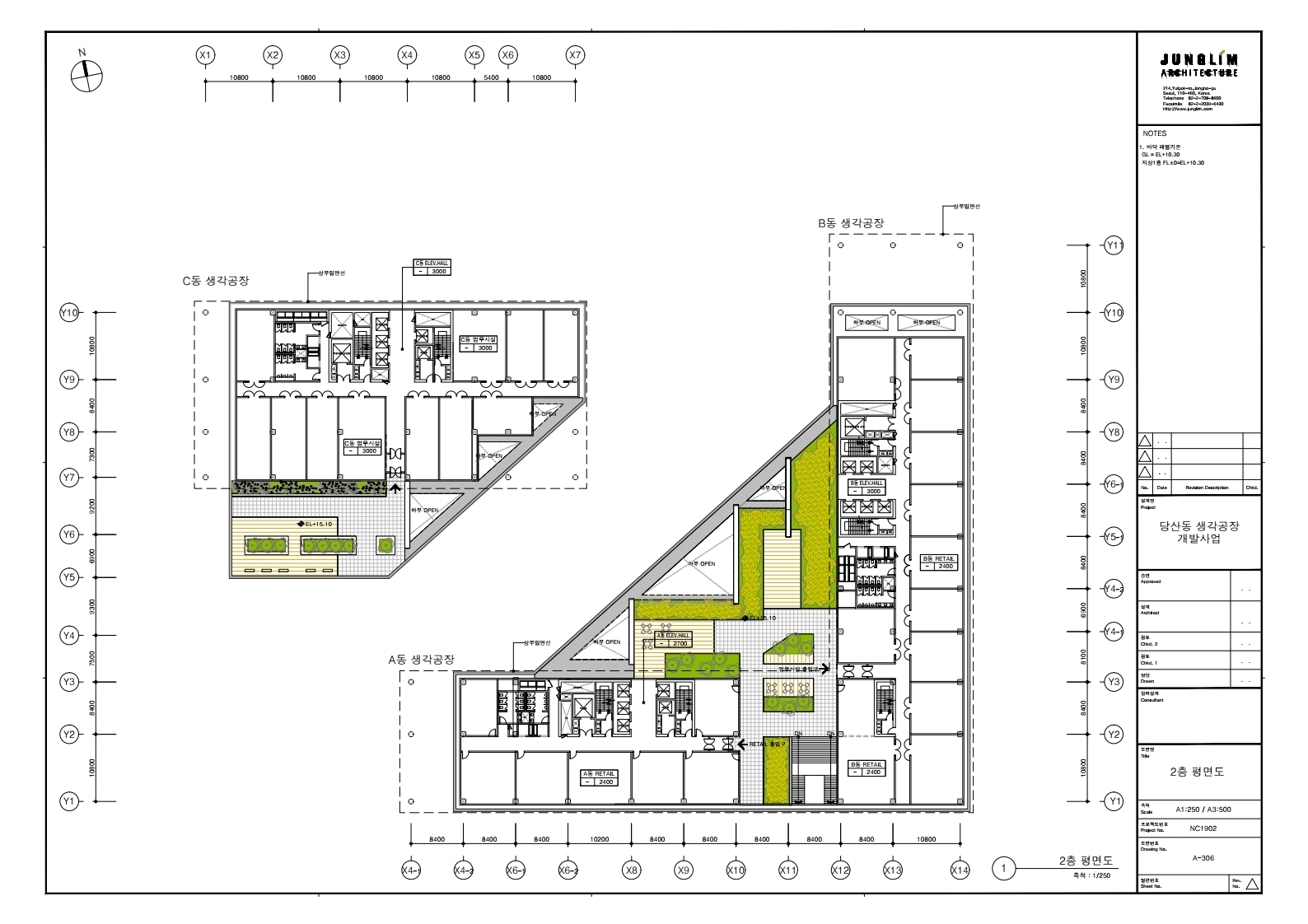
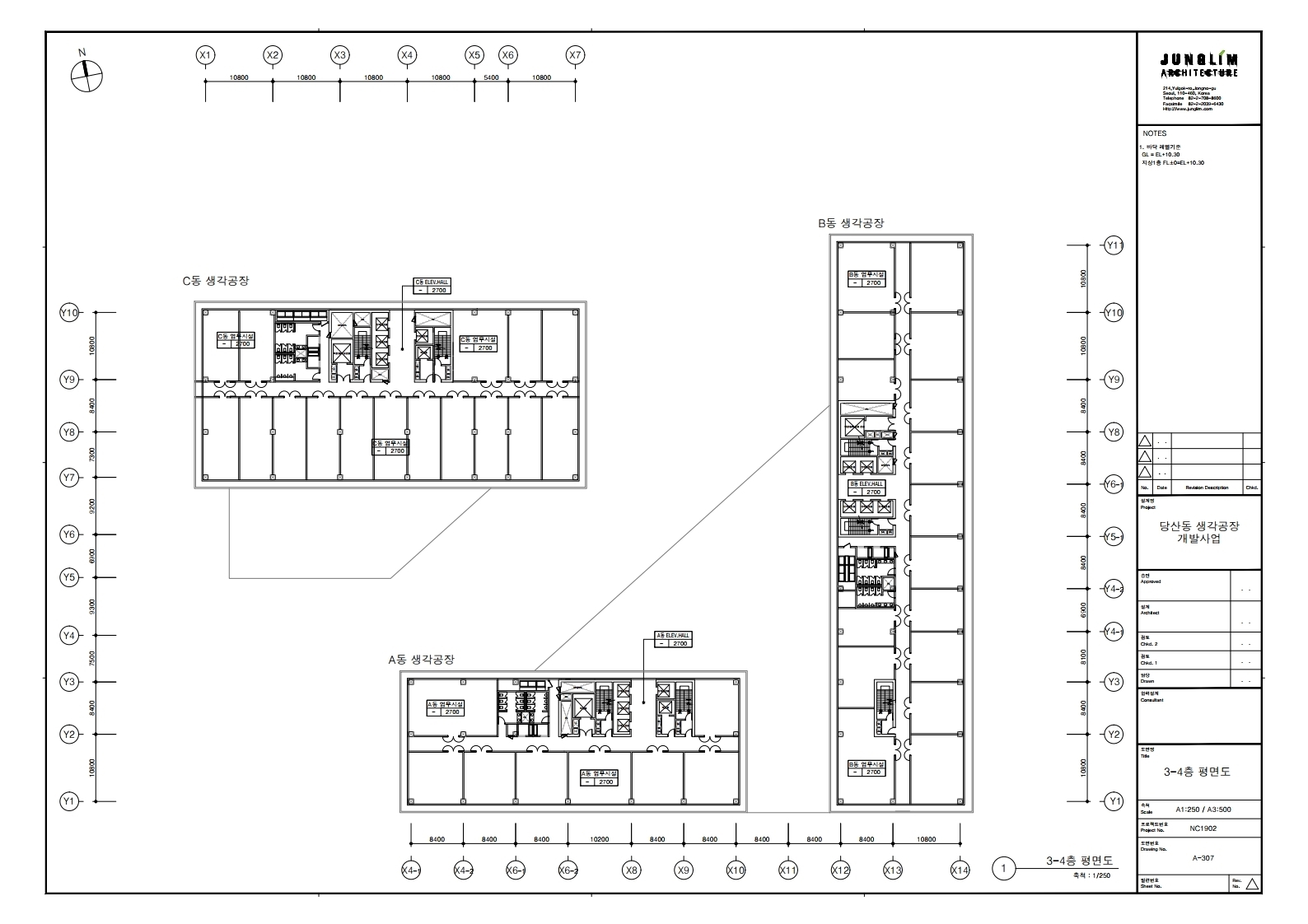
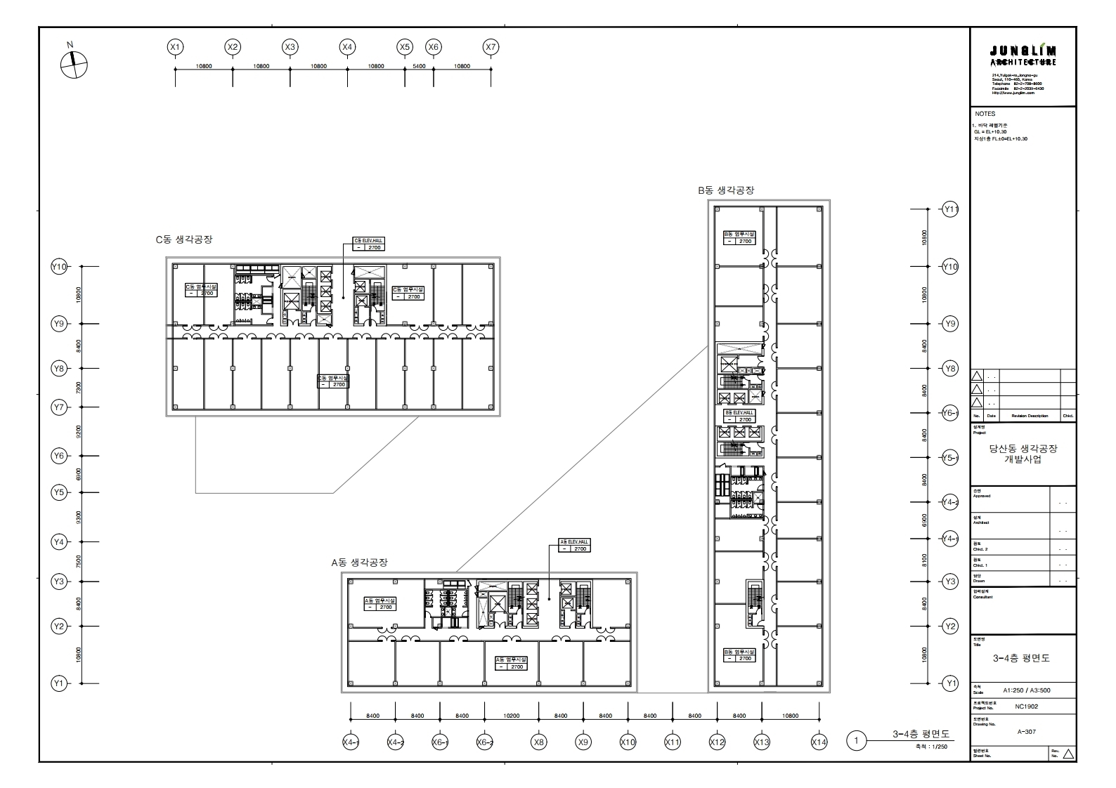
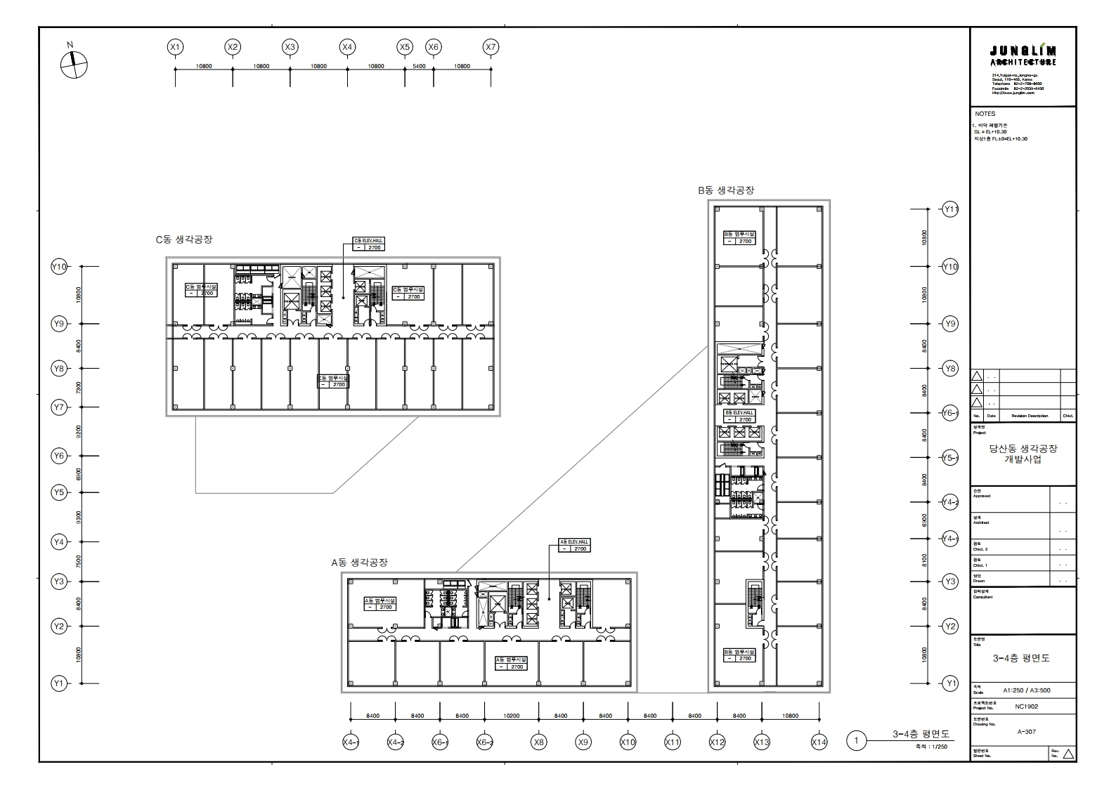
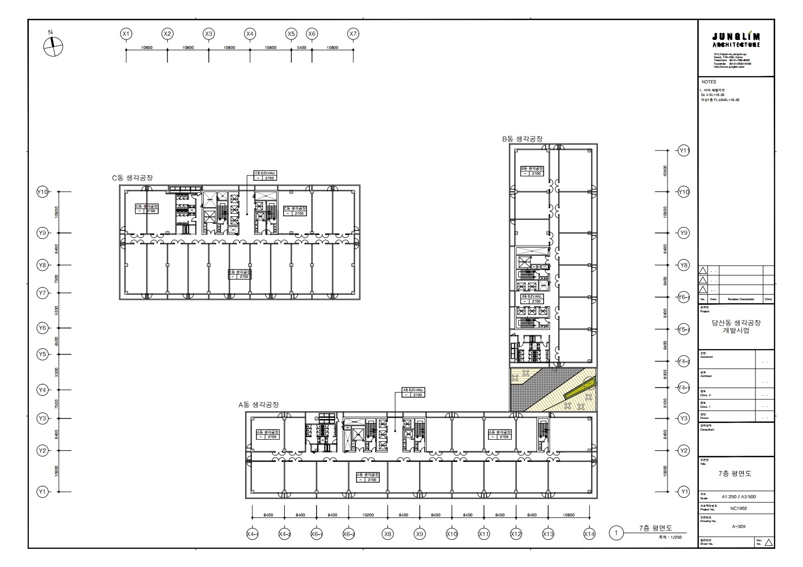
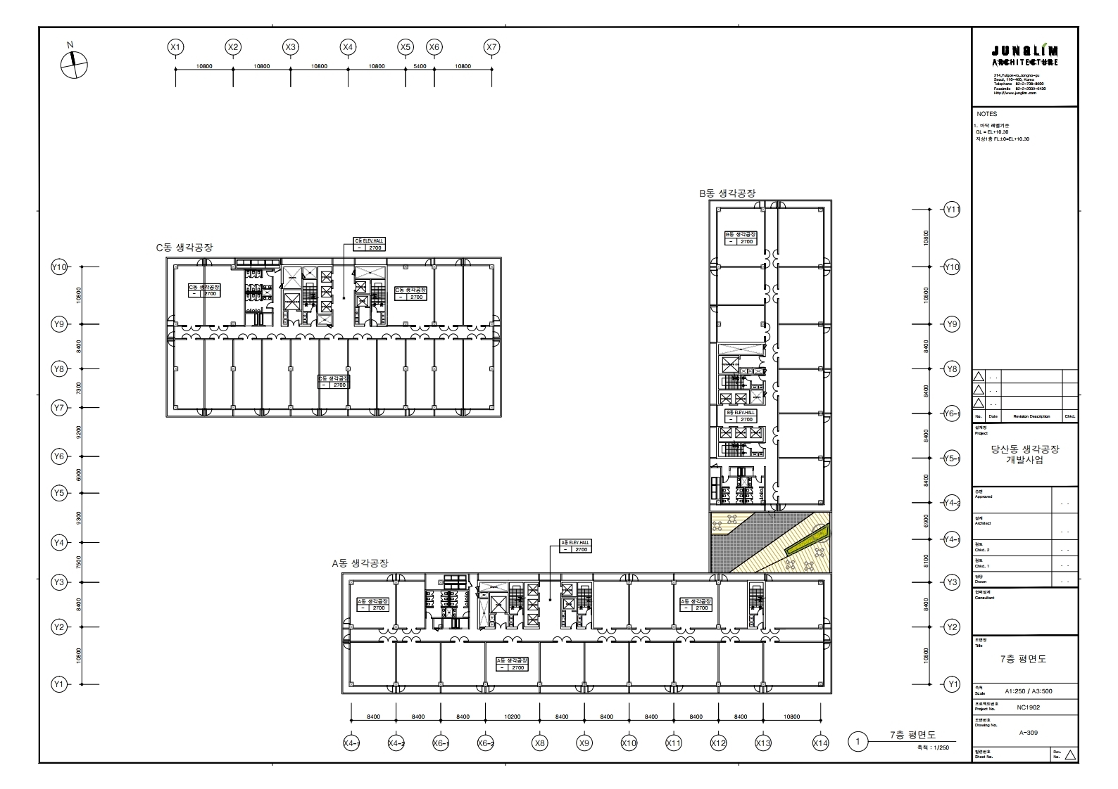
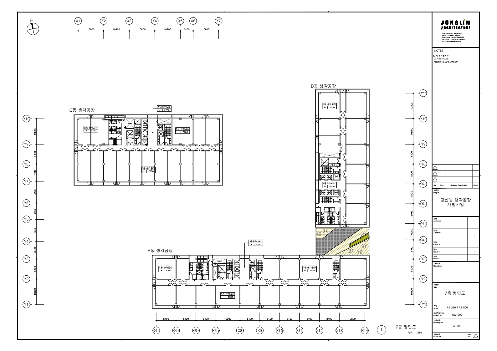
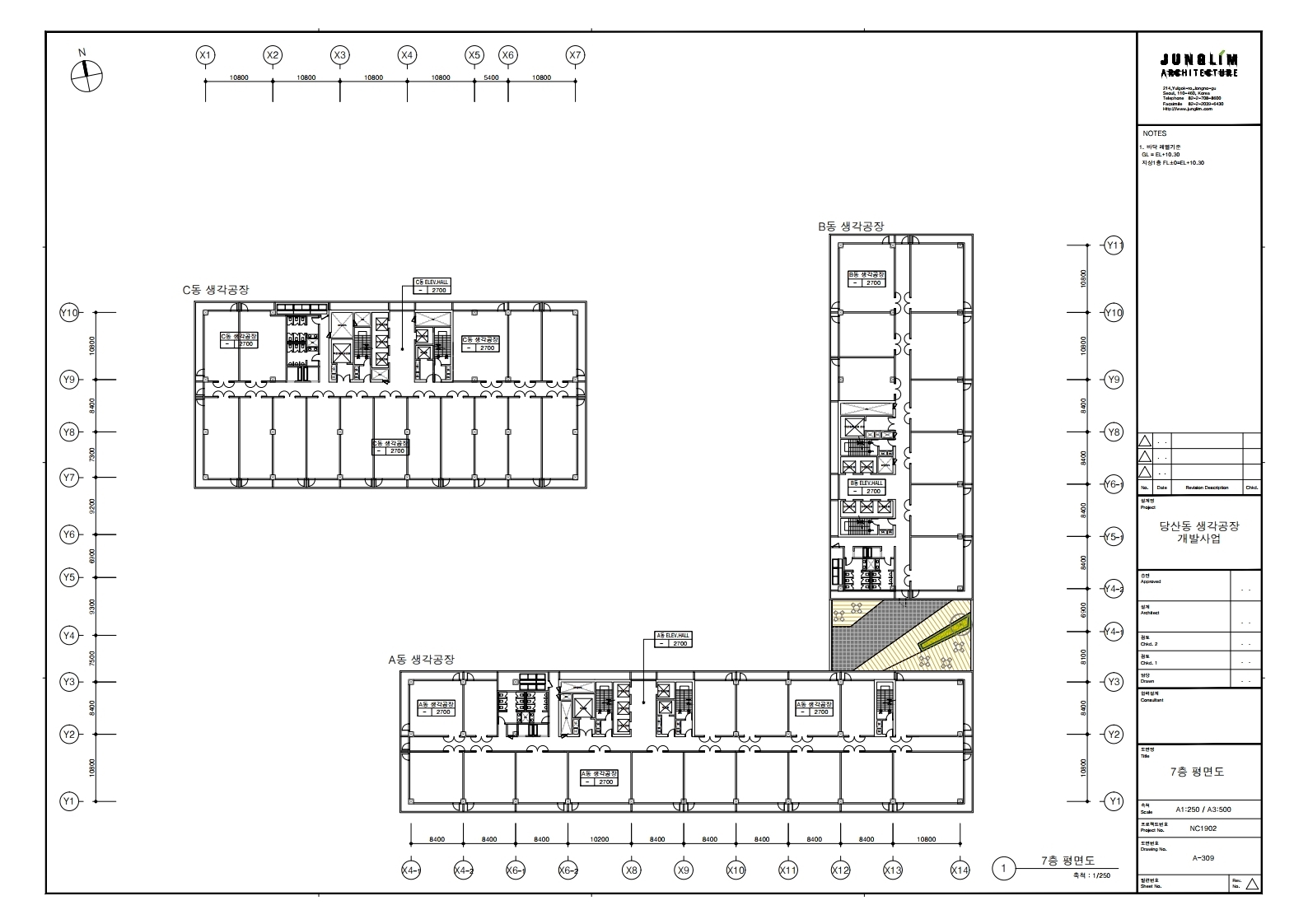
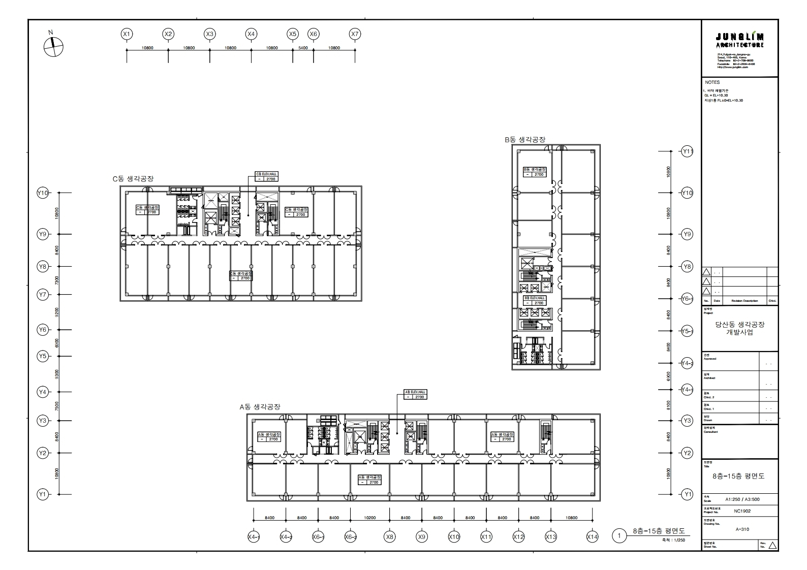
대지면적은 12,874.90㎡ (3,894.66평), 건축면적은 6,847.37㎡ (2,071.33평)
연면적은 99,994.40㎡ (30,248.31평), 지하 4층부터 지상 15층까지 A, B, C 세 개의 동으로 구성되며 연면적 3만여 평의 규모로 공급되니 영등포 지역에서 이만한 지식산업센터는 본 적이 없는듯합니다.
지하 4층에서 지하 2층까지는 넓은 주차공간으로 확보되어,
총 주차 대수가 765대 법정대비 173.28%라고 하니 주차에 어려움이 없어 보일듯합니다.
당산동생각공장(가칭) 전용 20평대 내외로 다양한 평형대로 분양받으실 수 있습니다.








지식산업센터를 분양받으실 때 궁금해하시는 부분을 정리해볼게요
☞위치는: 초역세권 문래역 도보 5분 거리, 영등포구청역 도보 7~8분 거리
☞분양 가격: 아직 미정이나, 예상 가격은 1500만 원 정도입니다
☞규모: 연면적 3만 평 / A, B, C 세 개 동으로 구성 (공장의 기본 평형은 전용 20평대입니다)
☞시행, 시공: SK건설사
☞현재 입주의향서 접수 중 (입주의향서-> 청약-> 계약-> 중도금 무이자-> 잔금) 정분 양 시기는 5월 중순쯤 예상
그리고 마지막으로 지식산업센터의 장점! 세제혜택을 알려드릴게요~
지식산업센터는 대출이 80~90%까지 받으실 수 있으셔서 10~20%의 금액으로
분양을 받으실 수가 있습니다. 중도금 무이자이며, 계약 시 10% + 부가세 준비하시면 됩니다.
취등록세 50%, 재산세 37.5% 감면 세제혜택이 있으며
지식산업센터는 일반 오피스보다 관리비가 매우 저렴하고 주차가 용이하며, 화물 엘리베이터가 있어
짐을 옮기기에도 매우 편리합니다.
분양문의& 사전입주의향서 접수 문의는 ☎ 1833-8166입니다.
마지막으로 영등포에 희소식입니다. ‘서울 대표도서관’과 ‘제2세종문화회관’ 조성계획이 발표됐습니다. ‘서울 대표도서관’은 청량리역 도보 10분 거리에 연면적 35,000㎡ 규모로, ‘제2세종문화회관’은 서울 서남권에 최초로 들어서는 2,000석 규모의 공연장으로 영등포구에 조성됩니다. 2025년 개관 목표로 추진되며, 정보·문화 지역 불균형을 해소할 수 있는 시설로 주목받고 있는데요. 단순한 도서관, 공연장을 넘어 시민들의 일상과 함께 하는 문화놀이터이자 서울을 상징하는 대표 문화 인프라로 자리매김하길 기대해봅니다.


자세한 내용은 http://mediahub.seoul.go.kr/archives/1261280 참고해주세요^^
영등포 ‘제2세종문화회관’, 동대문 ‘서울대표도서관’ 건립
‘서울대표도서관’과 ‘제2세종문화회관’ 조성계획이 발표됐습니다. ‘서울대표도서관’은 청량리역 도보 10분 거리에 연면적 35,000㎡ 규모로, ‘제2세종문화회관’은 서울 서남권에 최초로 들어서는 2,000석 규모의 공연장으로 영등포구에 조성됩니다. 2025년 개관 목표로 추진되며, 정보·문화 지역불균형을 해소할 수 있는 시설로 주목 받고 있는데요. 단순한 도서관, 공연장을 넘어 시민들의 일상과 함께 하는 문화놀이터이자 서울을 상징하는 대표 문화 인프라로
mediahub.seoul.go.kr
