부동산 정보 / / 2024. 3. 19. 15:29

당산skv1타워1차, 당산skv1타워2차 지식산업센터 분양 정보

반응형

 

당산skv1타워 1차와 2차 지식산업센터 분양 안내입니다

 

 

※ 당산skv1타워 1차 사업개요

위치 서울특별시 영등포구 당산동 5가 9-9번지 외 2필지

대지면적 2,895.95평

용도 지식산업센터 및 지원시설(근린생활시설, 기숙사, 어린이집)

연면적 25,396.28평

건축규모 지하5층~지상 35층 / 2개 동

주차대수 460대(법정대비 151.82%)

준공시기 2026년 7월

전용률 44.26%

시공사 sk에코플랜트(도급순위 9위)

당산역 19m 도보 2분 거리 

지식산업센터 558실, 창고 72실, 근린생활시설 17실, 기숙사 28실

 

 

※ 당산skv1타워 2차 사업개요

위치 : 서울특별시 영등포구 당산동 5가 9-13번지

대지면적 800.32평

용도 지식산업센터 및 지원시설(근린생활시설, 운동시설)

연면적 7,376.26평

건축규모 지하 6층~지상 18층 / 1개 동

주차대수 199대 (법정대비 209.47평)

준공시기 2025년 9월

당산역 300m 도보 4분 거리

지식산업센터 172실, 근린생활시설 7실, 운동시설 1실

 

1차, 2차 합산 연면적은 3만 2천 평의 대규모 지식산업센터이며, 

최대 높이 152m에서 즐기는 당산skv1타워 만의 장점이 있으며, 약 15층 이상이 한강 조망이 가능할거 같습니다.

 

 

당산skv1타워 1차, 2차의 위치입니다.

영등포 핵심 교통망의 중심이며, 2.9호선 당산역 접근성 최우수 입지를 자랑합니다.

도고 300m 이내 당산역 2,9호선 출구 직접 이용 가능한 초역세권입니다.

 

 

인천송도-여의도-남양주 마석을 잇는 GTX-B노선 통한 서울 및 경기동서부권 접근성 대폭 개선

GTX-B노선 개통예정으로 서울 서부권 광역 업무지역으로 성장 기대

당산역 인근 공동주택 및 상업시설 혼재지역 내 입지, 주요 업무권역과의 편리한 업무 인프라 공유 가능

 

 

 

영등포 당산초역세권에 위치한 당산SKV1타워 1.2차의 장점

지하철 2.9호선 당산역 초더블역세권

GTX-B노선 여의도 경유 더욱 빨라진 접근성

최대 35층 규모의 영등포 랜드마크

최고 높이 약 152M에서 누리는 특별한 한강 조망 (1차 일부)

맑은 수경관과 열린 휴게공간 쾌적한 업무환경 보유

입주사를 먼저 생각한 부대시설, 모두가 만족하는 업무 편의성

 

 

입주사를 위한 풍부한 부대시설

특별한 초고층 커뮤니티시설과 회의실, 샤워실 등 다양한 공용 편의시설 예정

 

 

보행동선과 연계된 수변 산책로, 데크 휴게공간 계획으로 쾌적한 업무환경 조성

"전체 면적 중 조경면적 15% 구성으로 풍부한 녹지공간 계획으로 쾌적한 업무 환경 조성"

 

 

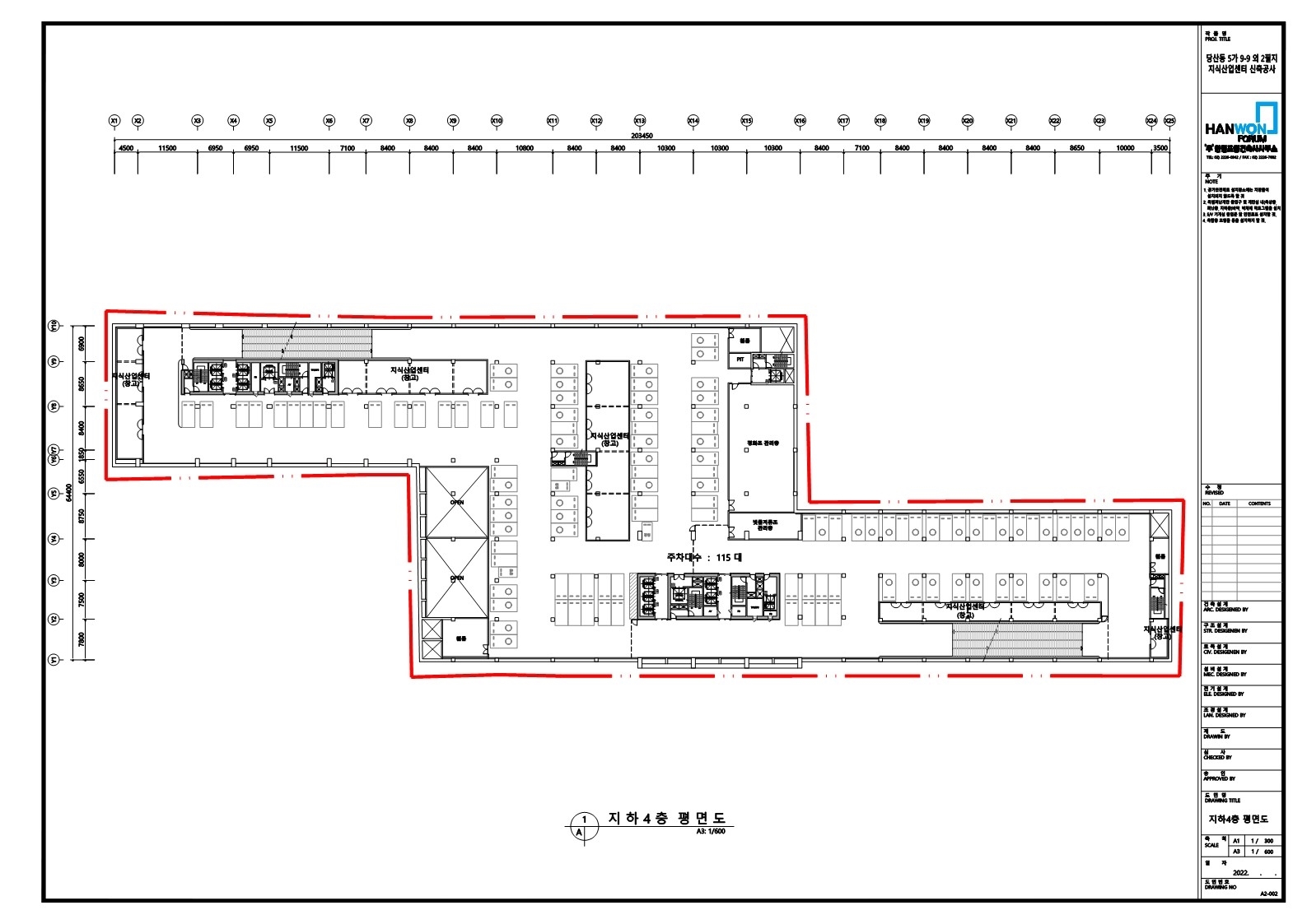
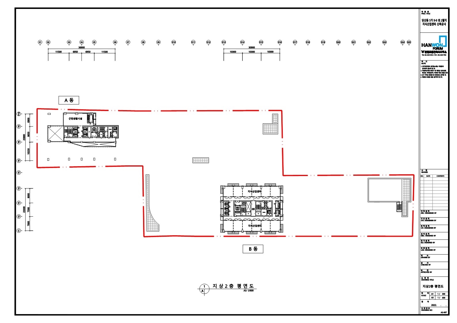
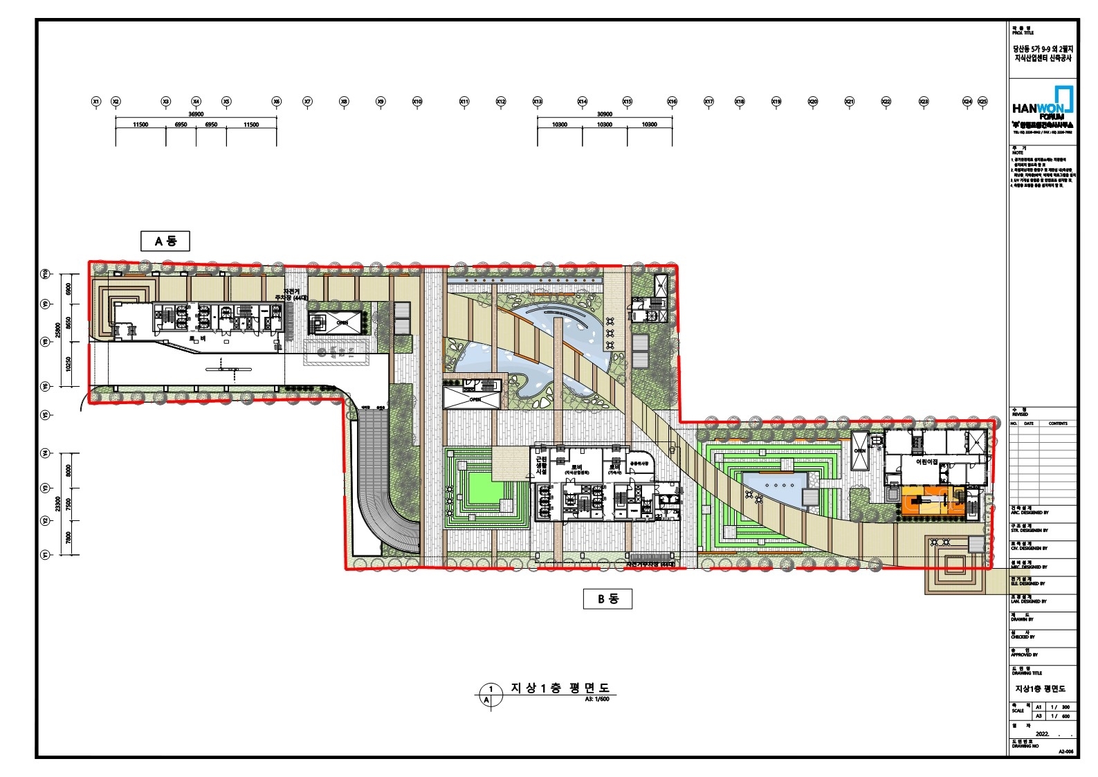
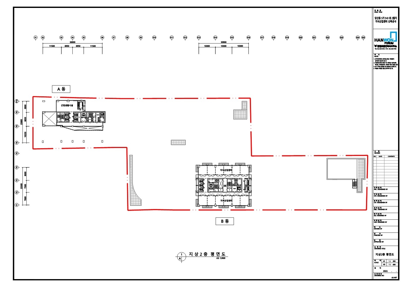
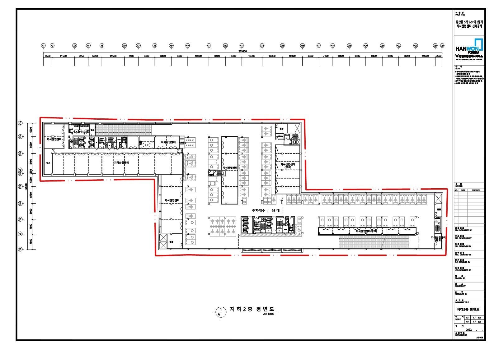
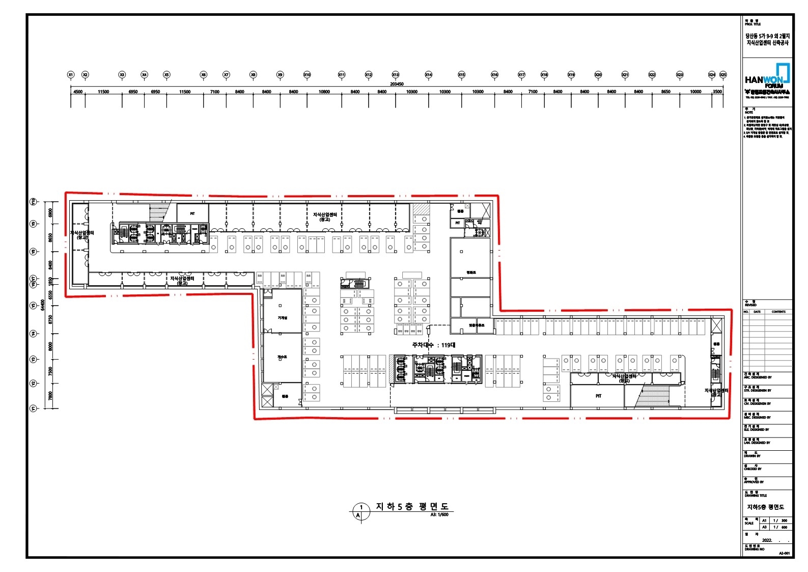
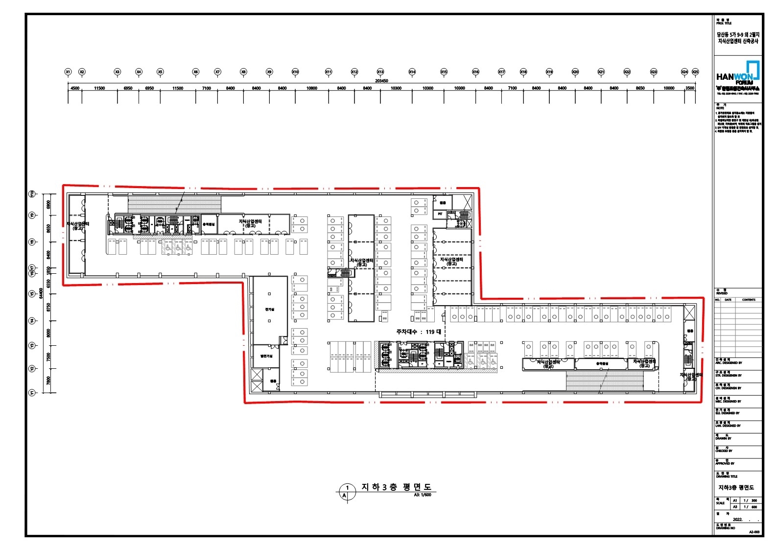
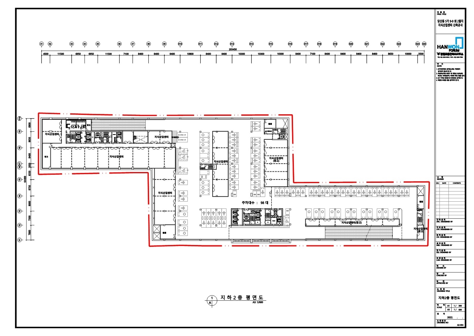
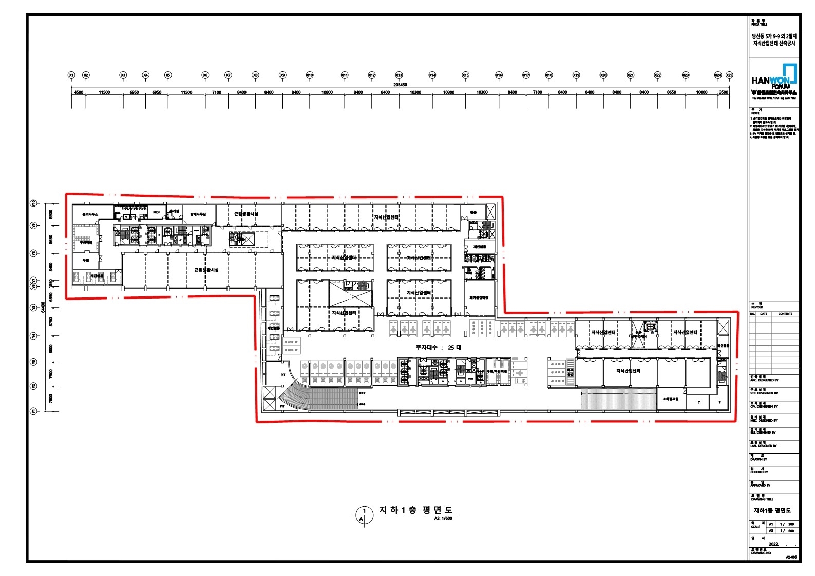
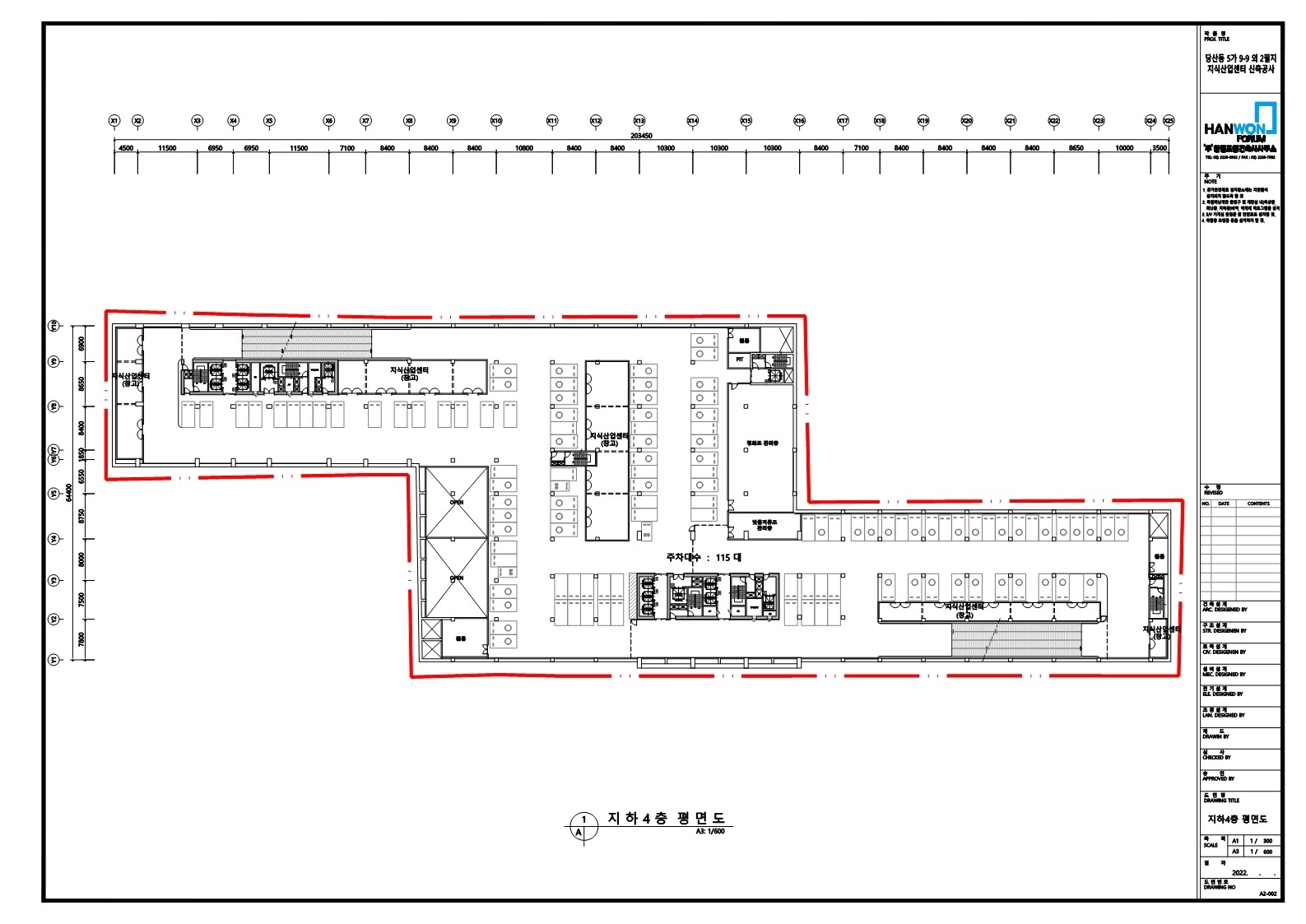
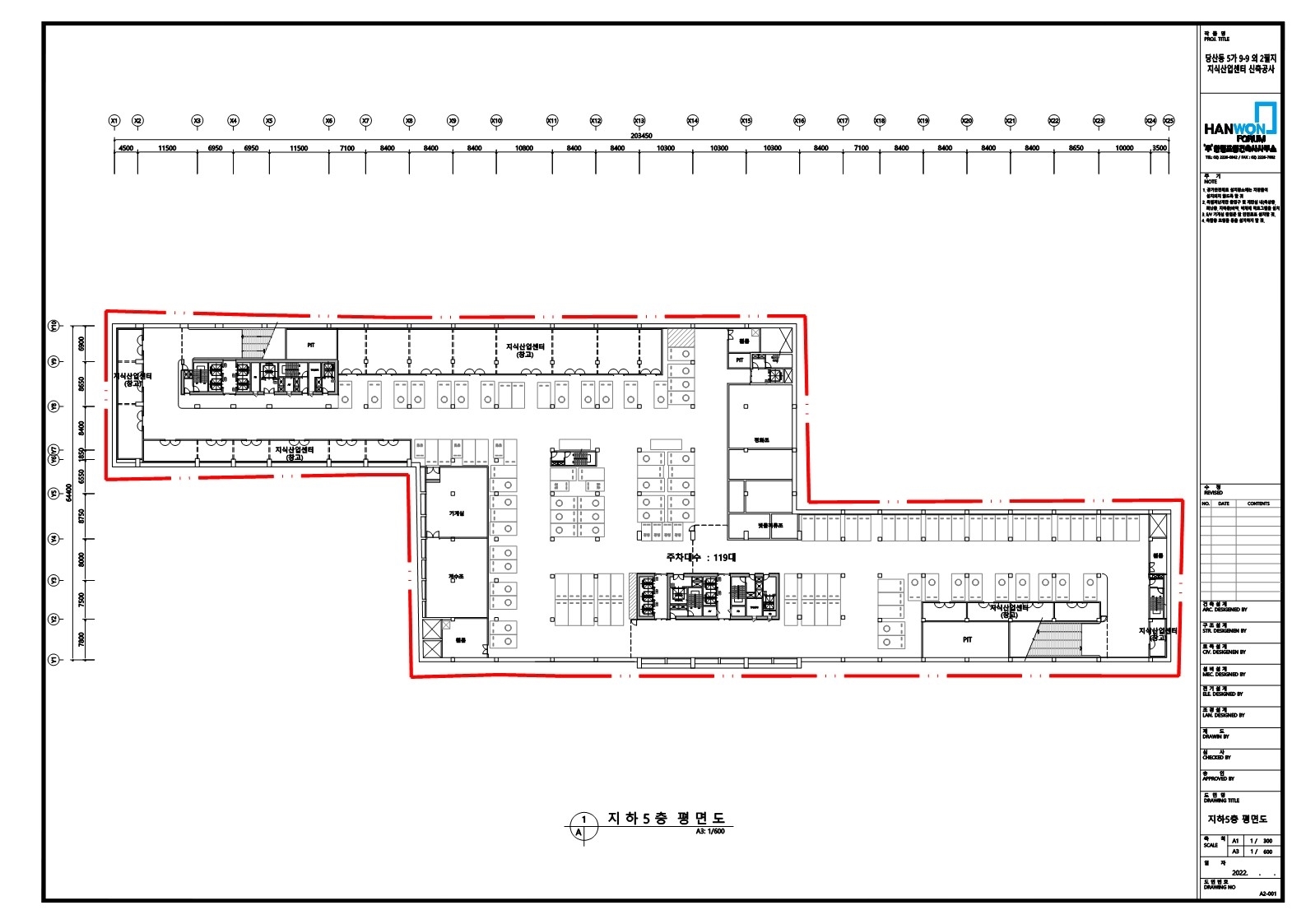
당산SKV1타워 기준 층 평면도입니다.

 

 

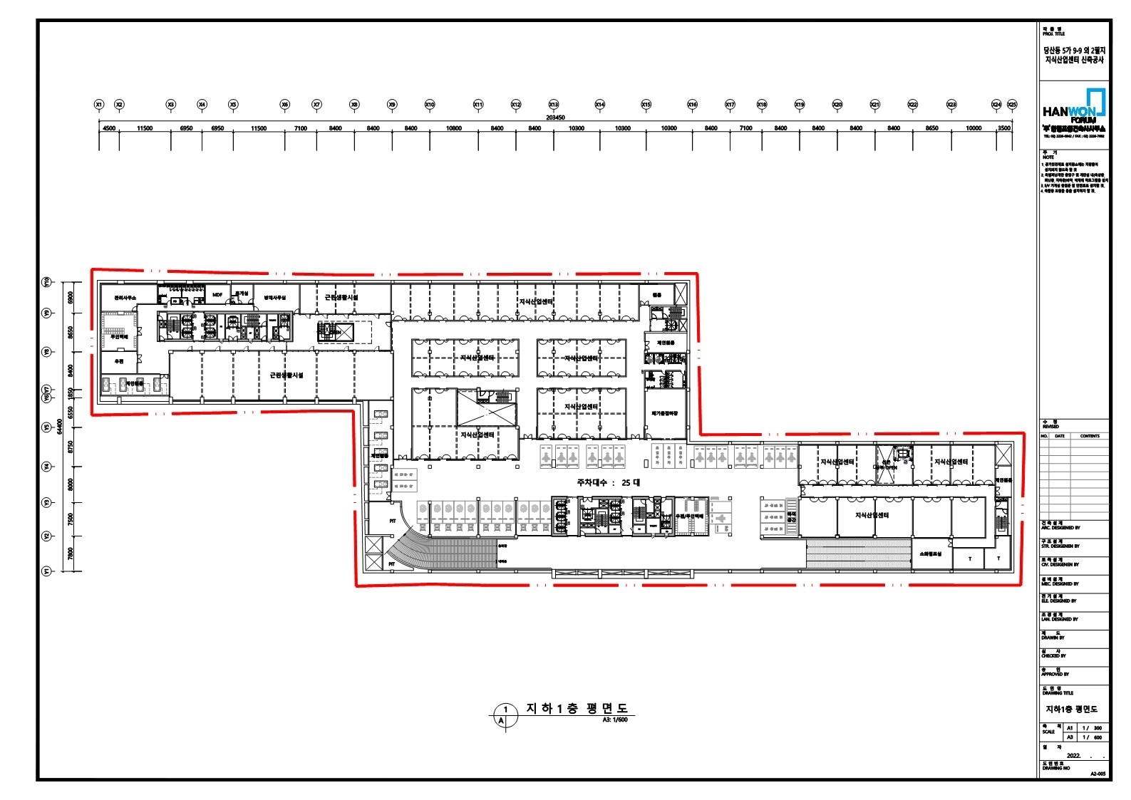
지하 5층 평면도

 

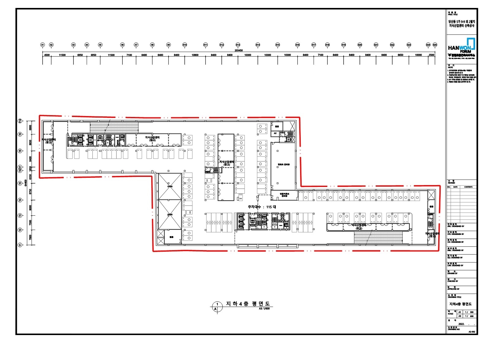
지하 4층 평면도

 

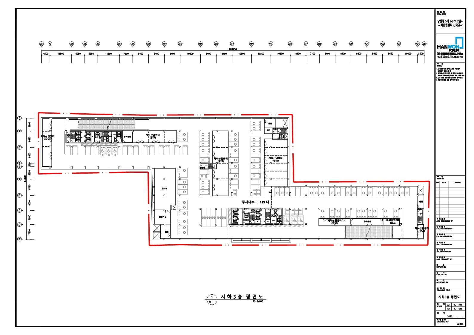
지하 3층 평면도

 

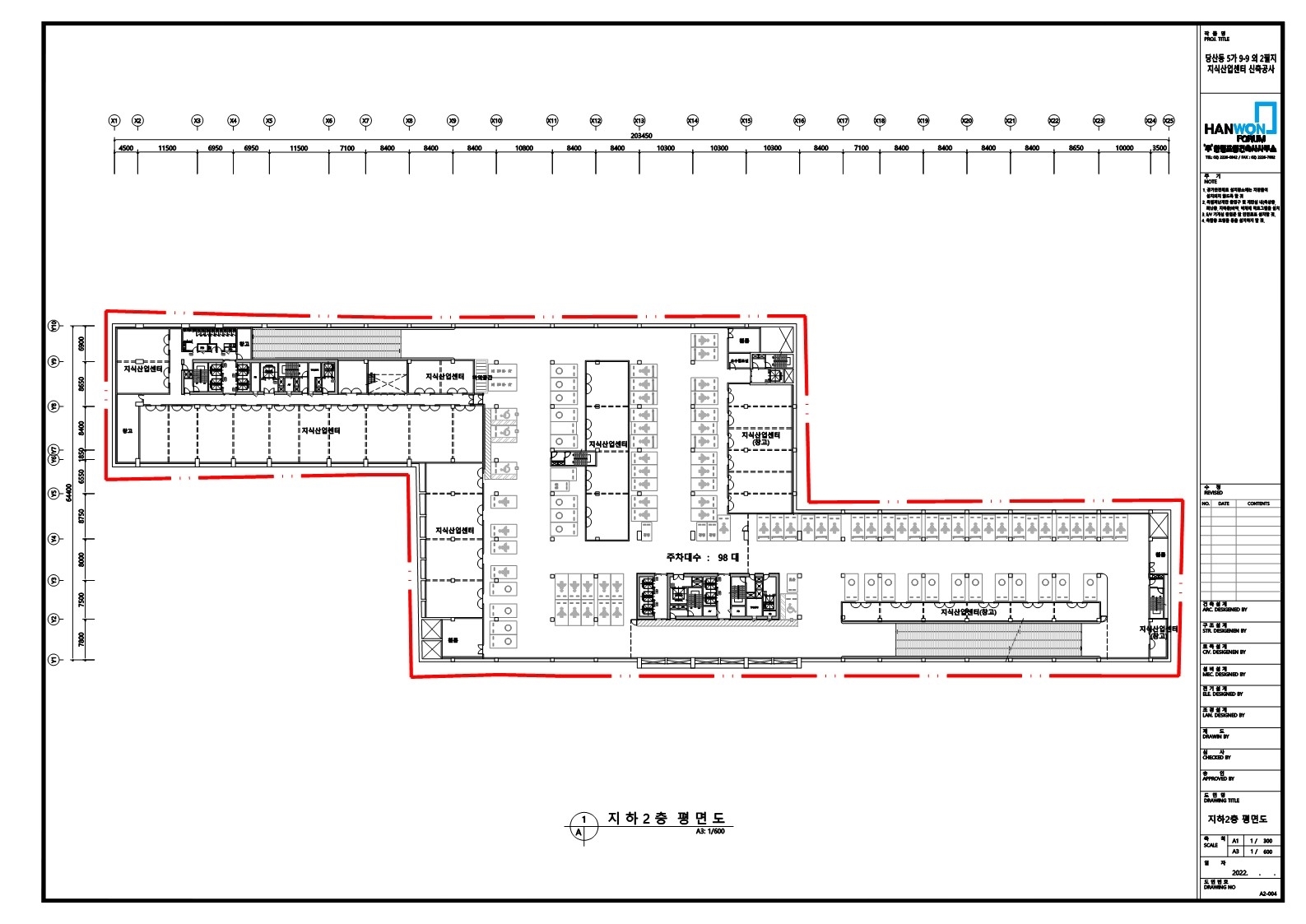
지하 2층 평면도

 

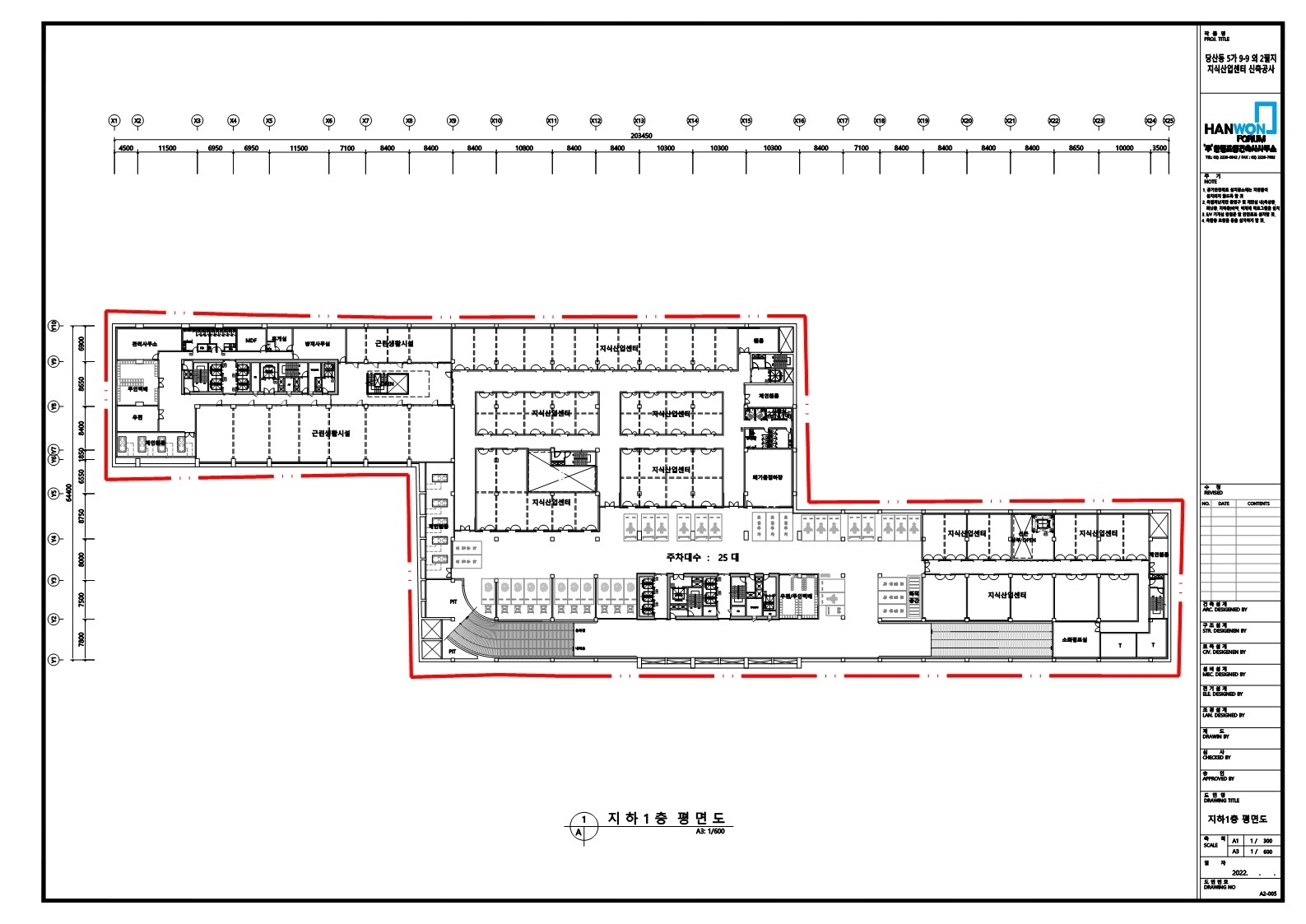
지하 1층 평면도

 

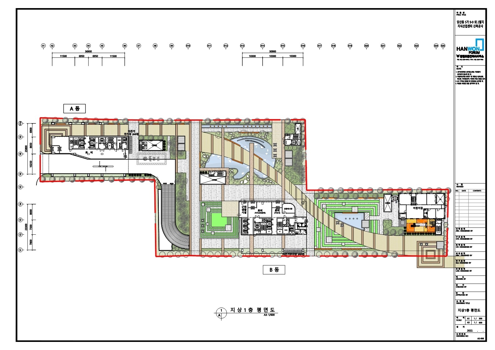
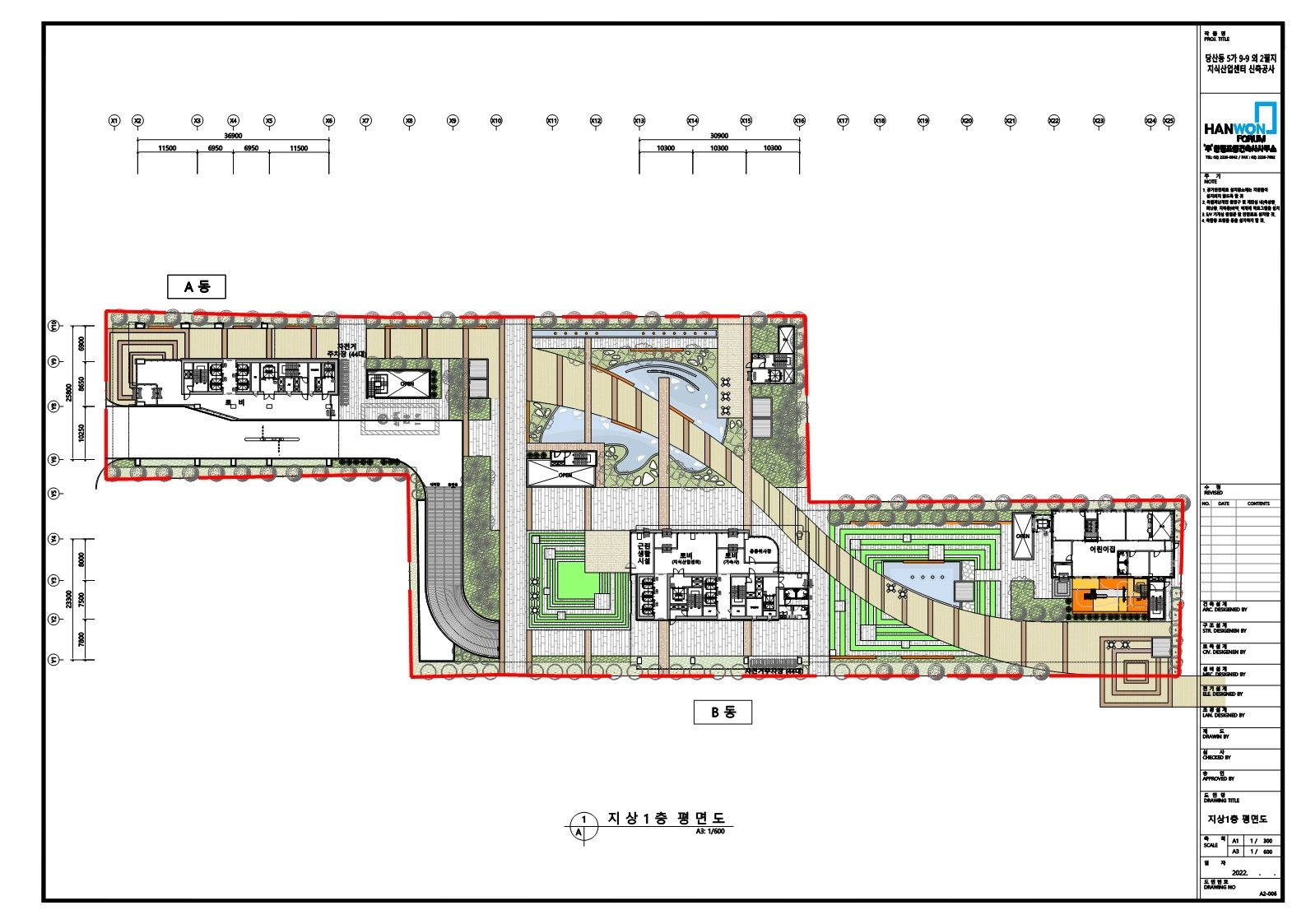
지상 1층 평면도

 

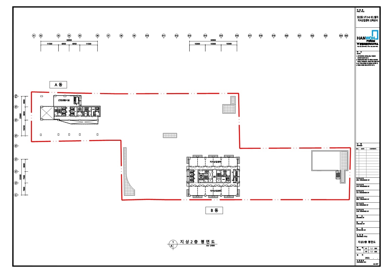
지상 2층 평면도

 

지상 3층 평면도

 

지상 4층~12층 평면도

 

지상 13층 평면도

 

지상 14층~16층 평면도

 

지상 17층 평면도

 

지상 18층~24층 평면도

 

지상 25층 평면도

 

지상 26층 평면도

 

지상 28층, 30층, 32층 평면도

 

 

 

당산SKV1타워 취득세 및 재산세 감면 혜택 

취득세 감면 35% , 재산세 감면 37.5%

계약금 10%, 중도금무이자, 잔금대출 (80% 이상)

당산SKV1타워 1차 2차 분양문의는 아래 번호를 클릭해 주세요

 

반응형
  • 네이버 블로그 공유
  • 네이버 밴드 공유
  • 페이스북 공유
  • 카카오스토리 공유