안녕하세요
고덕비즈밸리 강동u1센터 지식산업센터, 상가, 지원시설 전매 호실들을 안내해 드리겠습니다

강동U1 지식산업센터 사업개요
서울 강동구 고덕동 343-2 고덕강일 공공 주택지구자족 6BL
대지면적 3,083.99평, 연면적 21,574평, 규모 지하4층~지상20층 (지상 14층 2개 동),
건폐율 51.10%(법정60%), 용적률 399.98%(법정 400%), 전용률 50.02%,
사용용도 지식산업센터(공장), 업무시설, 근린생활시설, 주차대수 503대,
준공일 2023년 9월
강동U1 지식산업센터 위치 교통
대중교통현황
9호선 샘터공원역 신설 및 연장 확정, 지하철 5,8호선 연장 확정, 강일역 內 환승센터 설치 예정
고속도로 접근성이 우수하며, 강일 IC 및 상일 IC를 통하여 올림픽대로, 서울외곽순환고속도로 진출입 용이 강북접근성 또한 우수, 강동대교, 고덕대교를 통해 강북 및 구리, 남양주 접근성 우수
9호선 샘터공원역 28년 개통예정 개통되면 강동U1센터 지식산업센터가 역에서 도보 2분 거리인 초역세권


고덕대교 신설, 세종포천고속도로개발 및 강동IC신설
광역버스, 고속버스 지하철 간 환승 가능으로 경기도부터 대중교통 접근성 양호

이케아부터 쿠쿠전자, 도드람, 에이스메디칼, 신라교역까지 사옥 17개의 자족시설과 유통판매시설이 입주예정에 있습니다


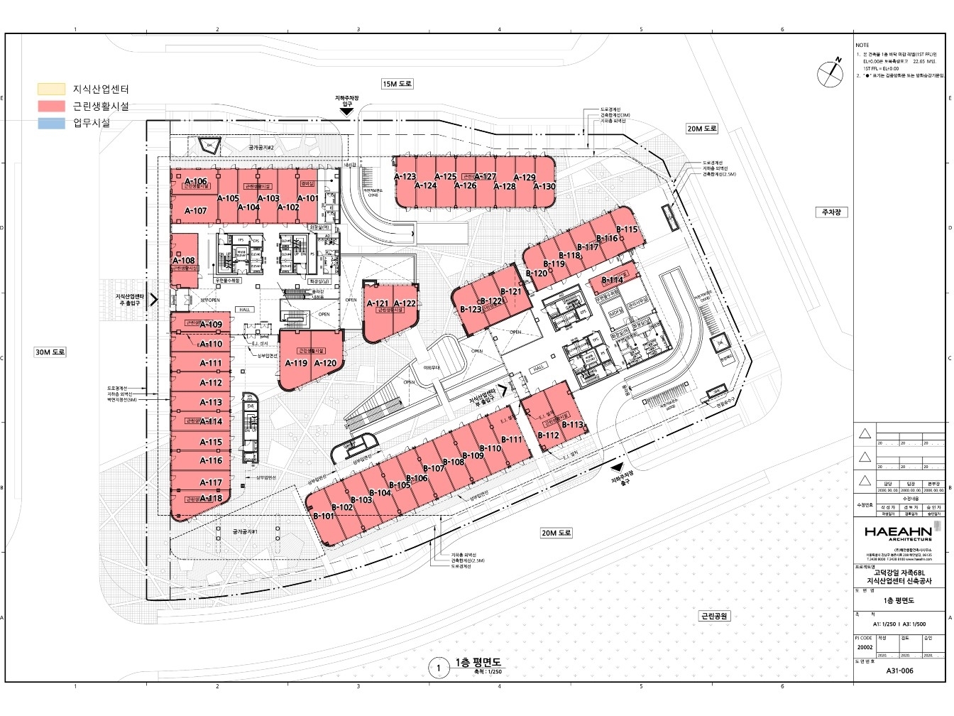
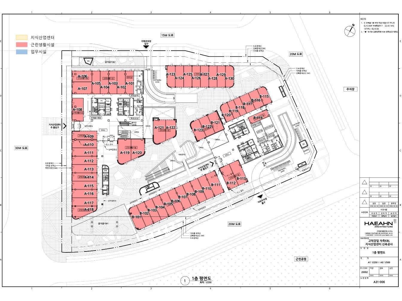
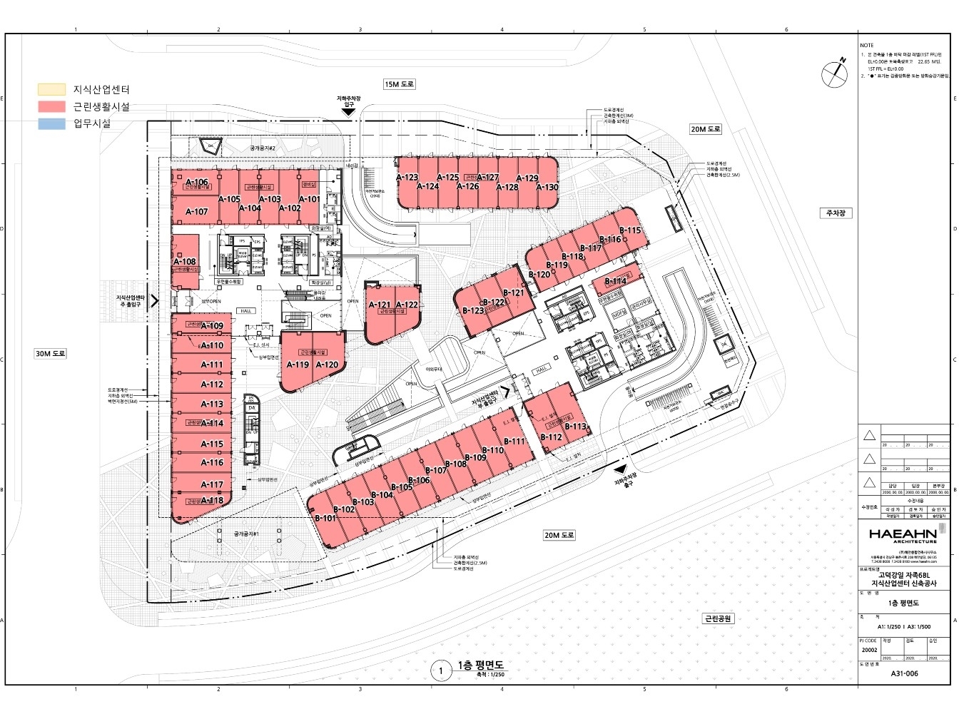
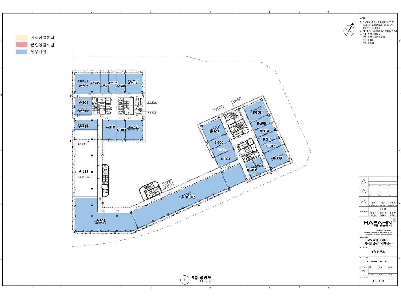
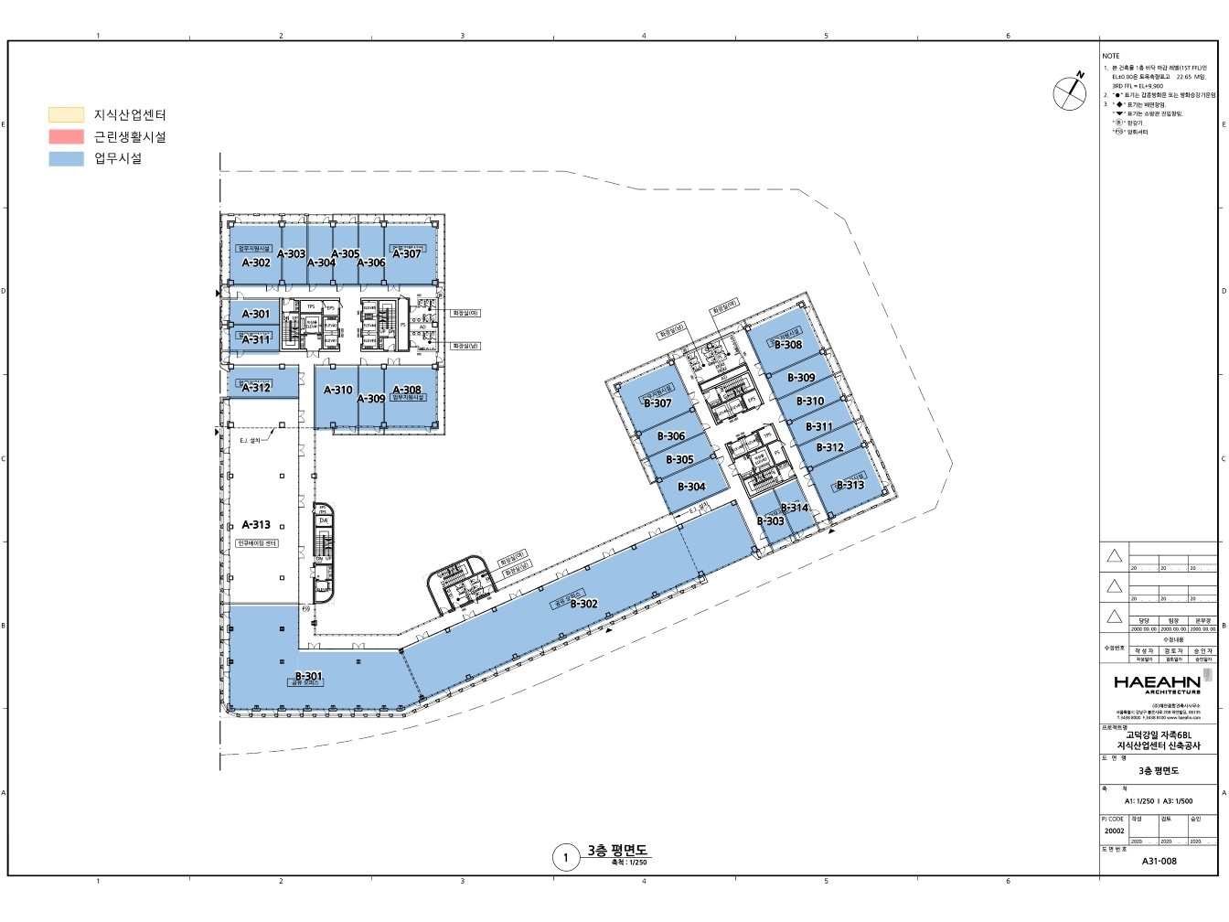
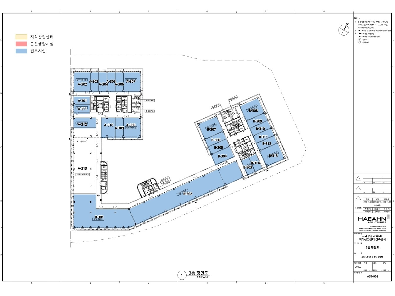
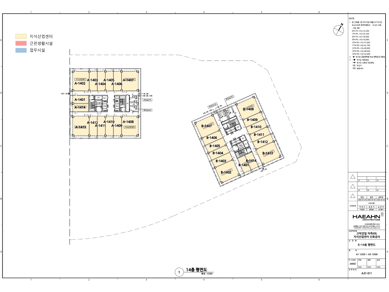
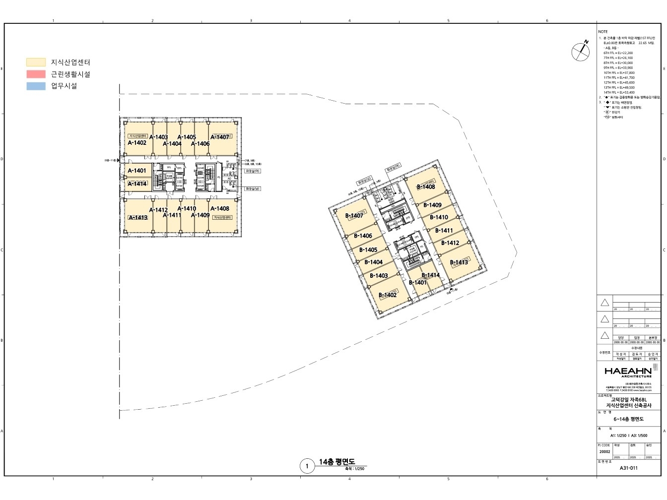
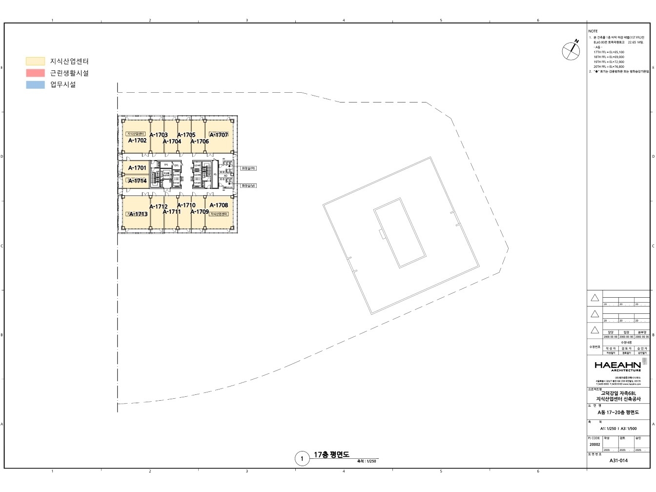
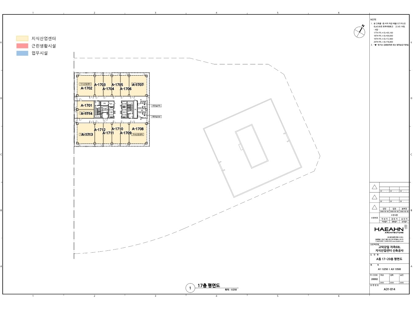
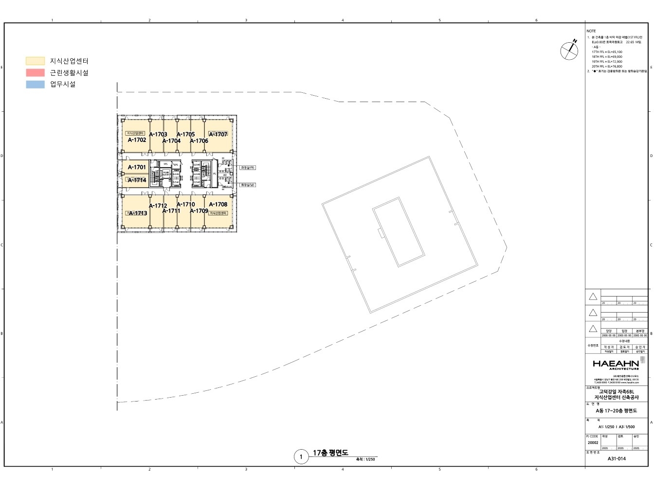
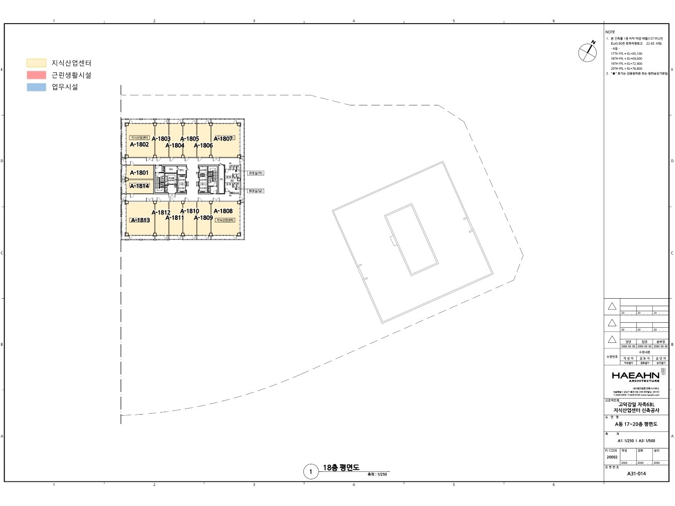
강동U1 지식산업센터 평면도 외 전매 호실

지하 2층 지식산업센터 전매
전용평수 22.6 / 분양평수 47.05 / 공급가 304,410,000원 [부가세 별도]
전용평수 20.91 / 분양평수 43.53 / 공급가 222,870,000 [부가세 별도]
전용평수 21.59 / 분양평수 44.94 / 공급가 261,550,000 [부가세 별도]


1층 상가 전매
전용평수 15.82 / 분양평수 32.93 / 공급가 823,250,000 [부가세 별도]
전용평수 13.72 / 분양평수 28.56 / 공급가 599,760,000원 [부가세 별도]

2층 업무지원시설 전매
전용평수 11.43 / 분양평수 23.8 / 공급가 323,680,000원 [부가세 별도]


지상 9층 지식산업센터 전매
전용평수 12.96 / 분양평수 26.97평 / 공급가 368,670,000원 [부가세 별도]







A동 16층 지식산업센터 전매
전용평수 27.52 / 분양평수 57.31평 / 공급가 817,810,000원 [부가세 별도]


입주자들을 위한 편의시설 및 공유시설 설치, 공유오피스, 피트니스, 인큐베이팅센터와 웰컴센터, 키즈카페와 스마트팜이 있습니다



이 외에도 전매 호실들이 있습니다
매수, 매도 문의받고 있으니, 언제든지 문의주세요~
21년 분양당시 분양가격이 1300만 원대에 진행하였고, 그 이후 프리미엄이 평당 500만 원까지 올라서 거래되었던 현장입니다. 좋은 입지의 좋은 호실을 저렴하게 분양받으시길 바랍니다^^
문의는 1833-8166번이나, 톡톡으로 남겨주세요~
카카오톡 채널 - 전 실장의 부동산 노트 (kakao.com)
전실장의 부동산노트
지식산업센터(아파트형공장) 분양&전매&임대 궁금하신 부분은 언제든지 문의주세요 1833-8166
pf.kakao.com
'부동산 정보' 카테고리의 다른 글
광명 현대테라타워 지식산업센터 상가 전매 급매호실 계약금포기 물건 안내 (0) | 2023.03.30 |
---|---|
영등포 역세권 양평자이비즈타워 지식산업센터 전매안내 (1) | 2023.03.28 |
버팀목 전세자금대출조건 한도 및 금리 신청방법 (0) | 2023.01.17 |
특례보금자리론 자격조건 신청방법 안내 (0) | 2023.01.17 |
지식산업센터 투자는 어떻게 하는것이 좋을까? 지산 전망, 투자방법 (0) | 2022.12.29 |