마곡 아이파크 디어반 분양 중에 있습니다. 양천향교도보 2분 거리에 위치하였고, 현재 임대분양과 일반분양으로 구분되어 진행하고 있습니다. 마곡 아이파크 디어반은 마곡일반산업단지의 최초로 공급된 지식산업센터입니다. 오늘은 마곡 아이파크 디어반 사업개요 와 분양안내를 해드리겠습니다.
마곡 아이파크 디어반 사업개요
마곡지구 내 R&D형 최초의 지식산업센터이며, 연면적 약 21, 833평으로 공급되는 현장입니다.
- 사업명 : 마곡 아이파크 디어반 지식산업센터
- 사업주제 : HDC현대산업개발 컨소시엄
- 마곡도시개발구역 내 산업시설구역 D-18-A
- 용도 : 업무시설 (지식산업센터), 근린생활시설
- 대지면적 : 약 3,051.02평
- 건축면적 : 약 1,816.47평
- 연면적 : 약 21,833.03평
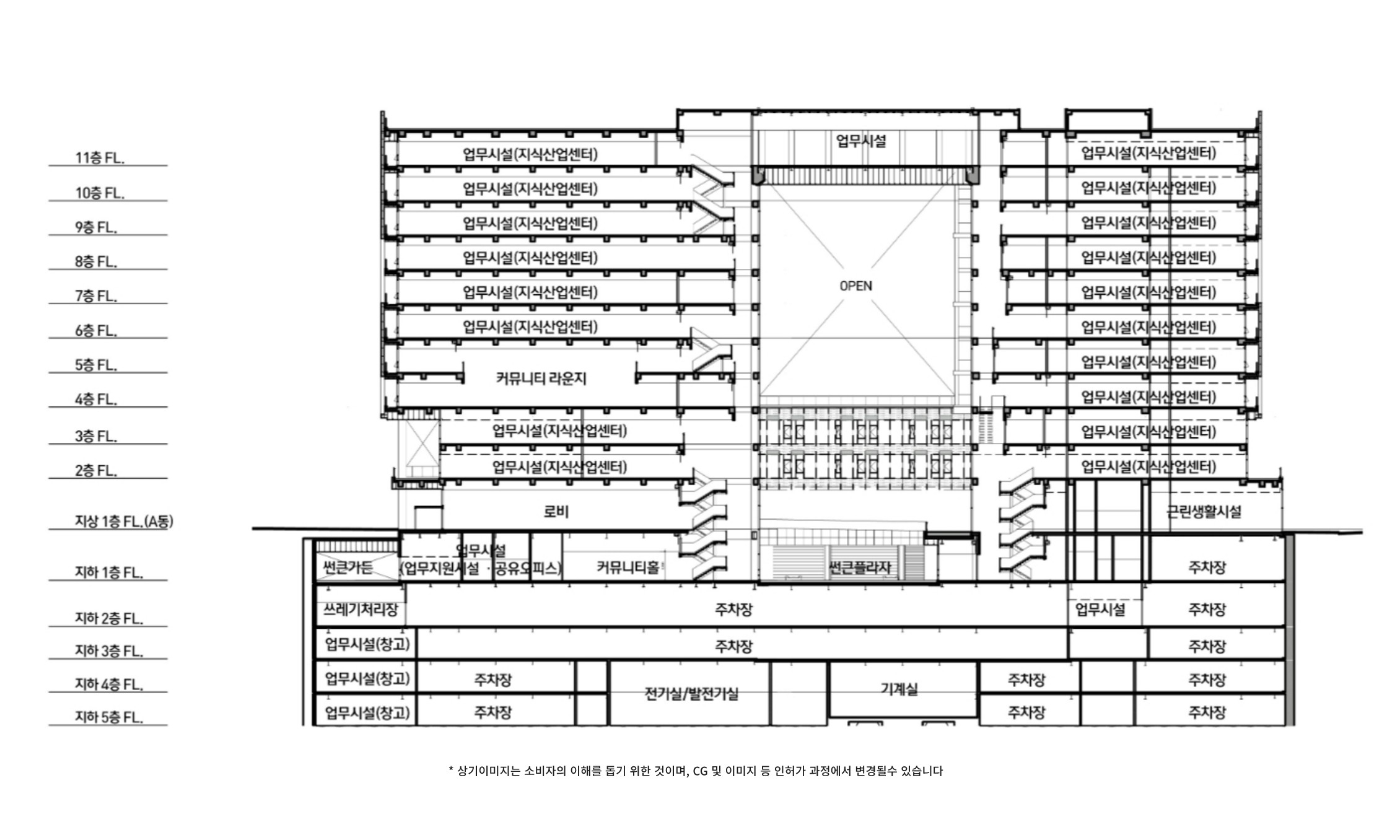
- 건축규모 : 지하5층~지상11층
- 건폐율 / 용적률 : 59.54% / 349.93%
- 주차대수 : 632대 (법정대비 130.85%) / 전기차 13대 (지하 2층~3층)
- 엘리베이터 대수 : 각 동별 5대 (일반 3대, 비상용 1대, 화물용 1대)/ 층별 총 10대
- 입주시기 : 2024년 8월 (7월 준공예정) / 입주기간은 2개월 (60일)
실입주의 장점은 타 지산상품과 달리 공모사업 지산으로 상가 비율이 낮고 임대호실이 많아 향후 공실 영향 감소
테라스, 휴게마당, 옥상정원, 공개공지 등 최고 수준의 쾌적한 업무공간을 제공하며, 마곡산단 내 대기업 및
다양한 업체 위치로 업무 연계성 상승
용도별 면적표
| 구분 | 지식산업센터 | 기타지원시설 | 근린생활시설 | 합계 |
| 면적 | 58,280.35 ㎡ | 11,741.30 ㎡ | 2,153.66 ㎡ | 72,175.31 ㎡ |
| 비율 | 80.75% | 16.27% | 2.98% | 100.00% |
서울시 마곡지구 내 공모사업으로 실수요 기업 3개 업체와 공공성 확보시설 구비
실수요기업 17실, 일반분양 118실, 일반임대 88실, 공공성 확보시설 14실, 근린생활시설 21실, 기타 지원시설 29실, 총 287실입니다.

마곡 아이파크 디어반 입지
9호선 양천항교역 도보 2분 + 발산역 (5호선), 마곡나루역 (공항철도) 도보권 이동가능
9호선 / 5호선 / 공항철도 트리플역세권 수혜지

올림픽 대로, 서부간선도로 등 각종 대로 인접하여 수도권을 빠르게 연결
"서울 서남권의 광역 멀티 교통망"

서울 서부지역의 관문인 마곡지구의 동측에 위치하고 있으며, 각종 도로 및 대중교통을 통하여 주변 업무지구와 원활한 교류 가능한 위치에 있습니다.
마곡산업단지 다양한 개발 호재가 진행 중에 있습니다.
- 서울 MICE복합개발 : 마곡동 767번지 일대 약 2.5만 평
- 지하 7층~지상 15층 규모
- 총 사업규모 약 4조 1천억 원
- 2024년 6월 준공예정
가양동 CJ부지 개발
- 양천항교역 CJ부지 약 3.2만 평
- 지하 5층~지상 17층 규모
- 복합 상업시설 개발 계획
- 2024년 상반기 착공 예정
서부 광역 철도
- 2021년 4분기 KDI 민자 적격성 심사 의뢰
- 국회동의 및 승인 2023년 예상
- 2030년 12월 완공 예정
김포공항 복합개발
- 공항동, 방화2동 일대 10만 평
- 지하 4층~지상 8층 규모
- 2024년 착공 예정
- 2030년 완공 예정
광명~서울고속도로
- 2018년 2월 민자투자사업 실시계획
- 2018년 5월 착공
- 2021년 2월 일부 구간 지하화 확정
- 2024년 상반기 개통 예정
마곡지구 호재
- MICE복합단지, CJ부지개발, 김포공항 복합개발, 서부광역철도, 광명서울간고속도로 등
공급예정 지식산업센터
- 마곡산단 :D38BL (마곡보타닉게이트), D13BL(우미), D18-BBL(계룡)
- 인근 : CJ부지(양천항교역), SK V1센터(증미역), 이마트부지(증미역)
마곡 아이파크 디어반 장점
"공용창고"는 공영면적으로 설계되어, 향후 임대활용을 통한 관리비 절감
입주기업의 편의를 위한 "전용 약 972평의 공용창고" 구비

마곡 아이파크 디어반은 바닥면적 약 1000평의 공공성 확보공간의 디자인으로
입주사들의 자부심을 높여주며, 대기업사옥과 유사한 대형 로비공간을 구성하였고,
피트니스, 다목적홀 등 일반적인 부대시설 대비 마곡 아이파크 디어반 만의 차별화된 커뮤니티를 설계하였습니다

1층 대형로비 : 메인 로비 공간으로 방문객의 첫인상과 입주사 사용자들에게 프라이드가 되는 공간제공 합니다,
1층 카페테리아 : 입주사들의 응접 및 간이미팅이 가능한 공간으로 전시가 이루어지고 1층 공용부와 연계되는 카페 브랜드를 기획했습니다 [바닥면적 약 53평]
1층 와인숍 : 레스토랑과 연계성을 지닌 공간을 목표로 하며, 유럽풍의 공간 분위기를 조성하였습니다.
1층 이탈리안 레스토랑 : [바닥면적 122평] 지하 1층 식당가 바닥면적 356평, 입주사와 지역주민들의 식사공
1층 다목적홀 : 메인 로비와 연계되는 다목적홀 공간으로 전시, 세미나등 다목적 콘텐츠 활용 가능한 공간을 설계하였습니다. [바닥면적 123평]
지하 2층 : 스크린골프 입주사 직원들을 위한 스포츠 문화공간, 사용희망 외부인에 대한 운영비 목적의 요금청구 바닥면적 157평
지하 3층 수장고
지상 2,3층 에듀스테이 & 에듀라운지
휴게 및 세미나등 다목적 콘텐츠 활용이 가능한 공간으로 열린 공간의 장점을 살린 공감으로 설계하였습니다.

마곡 아이파크 디어반 배치도

일반분양과 일반임대로 구분되어 있습니다.
일반임대료는 대략 4만 원 정도 예상하며, 최대 전용 36평까지만 가능할 것으로 보입니다












이상 마곡 아이파크 디어반 분양 소식이었습니다
관련문의는 ☎1833-8166번으로 문의하시면 홍보관 안내와 견적 그리고 분양부터 입주까지 안내해 드리겠습니다

카카오톡채널 - 전실장의 부동산노트 (kakao.com)
전실장의 부동산노트
지식산업센터(아파트형공장) 분양&전매&임대 궁금하신 부분은 언제든지 문의주세요 1833-8166
pf.kakao.com
https://youtu.be/MWqnuvhBmFA?si=SB2GUwcYziwZKurk
'부동산 정보' 카테고리의 다른 글
| 구로 아티스포럼 지식산업센터 분양 전매 소식 (1) | 2024.05.30 |
|---|---|
| 양천향교 역세권 마곡 아이파크 디어반 지식산업센터 분양소식 공공성 확보시설 안내 (0) | 2024.05.30 |
| 역세권 마곡지구 보타닉 게이트 지식산업센터 분양정보 (0) | 2024.04.25 |
| 마곡아이파크디어반 지식산업센터 분양중 (0) | 2024.04.05 |
| 가산역세권 가산3차 skv1센터 지하가 500만원대부터 분양 (0) | 2024.04.03 |

